Vuokrataan toimistotilat - Espoo
Tekniikantie 4 d, Otaniemi, keilaniemi, 02150 Espoo #10816225
Rakennuksen kuvaus:
Vuonna 1990 rakennettu, neljästä rakennuksesta koostuva Aallonharja-kiinteistö on vastikään uudistettu. Tällä persoonallisella toimistokohteella on mahdollisuus huolehtia omasta viljelyalueesta, kuntoilla, huoltaa polkupyörää tai lainata kiinteistön sähköpyöriä. Peruspalvelut ovat myös tasokkaat ja kiinteistöllä on aula, ravintola, kokoustiloja ja auditorio, parkkitilaa sekä vielä pop-up-toimistoja esim. projektitöihin. Sijainti on työmatkalaiselle kätevä ja kohteelta on kävelymatka metroasemalle.
Tilan kuvaus:
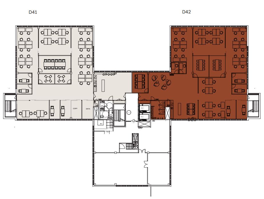
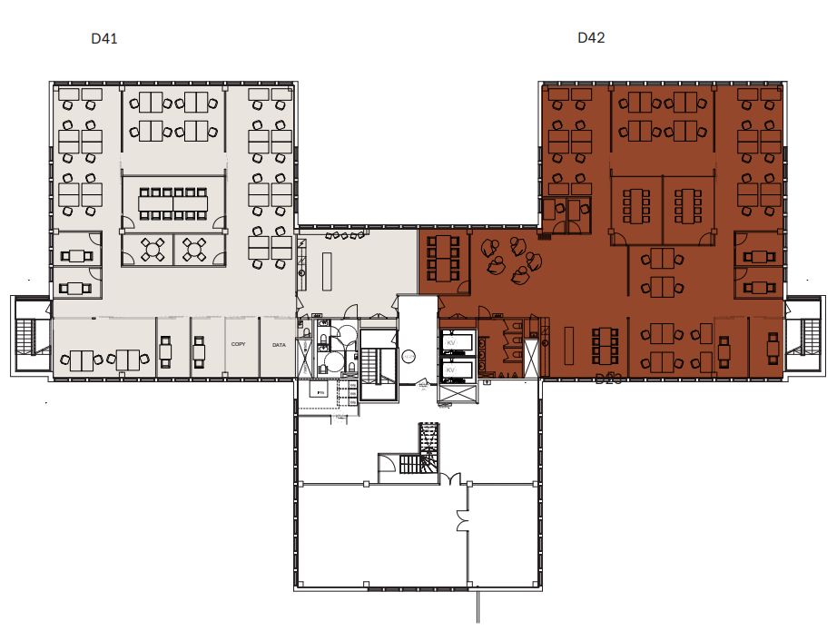
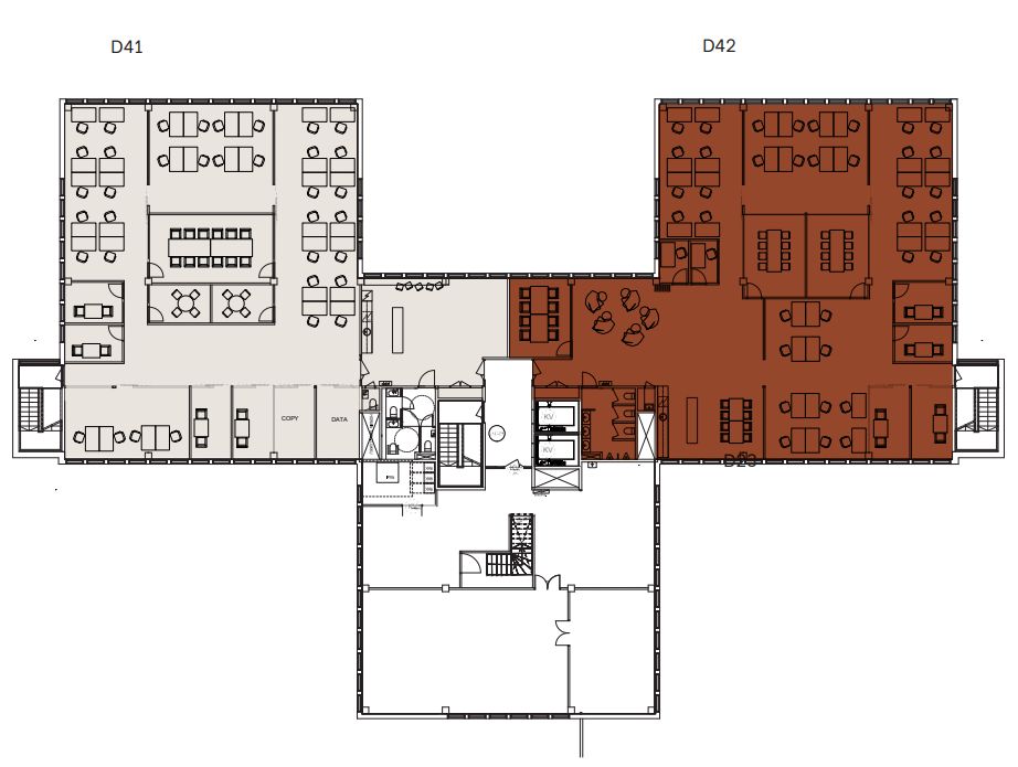
Aallonharjan kiinteistöt ovat uudistettu ja D-talon tilat ovat muokattavissa uuden käyttäjän tilatarpeisiin sopivaksi. Tilassa onnistuu avotoimisto, huonekonttori tai näiden yhdistelmä. Hyvälaatuinen ja tekniikaaltaan korkeatasoinen kiinteistö. Oheiset havainnekuvat osoittavat muokattavien toimistojen mahdollisuudet ja pohjakuvan värjätyt osiot ovat molemmat vapaana olevia 410 m2 paloja.
Kerros: 4
