Vuokrataan toimistotilat - Helsinki
Paciuksenkatu 21, Meilahti, 00270 Helsinki #10816213
Rakennuksen kuvaus:
Edustava, vuonna 2002 valmistunut Fokus-toimistokiinteistö näkyvällä paikalla Paciuksenkadun varrella Meilahdessa. Rakennuksen tehokkaat sekä modernit toimitilat tarjoavat toimivan ja rauhallisen työympäristön. Kiinteistössä on oma parkkihalli ja kattavasti palveluja, kuten vastaanotto ja henkilöstöravintola.
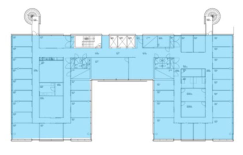
Tilan kuvaus:
Toimistotilat ovat valoisia ja näkymät Vanhaan Meilahteen vihreät ja merelliset taas Huopalahden puolelle. Täsät ylimmästä kerroksesta on erityisen hienot maisemat. Tiloista saa helposti muokattua nykyvaatimukset täyttävää hybriditilaa että tiivistäkin huonekonttoria.
Kerros: 7
Osoite
Paciuksenkatu 21, 00270 Helsinki
Tilatyyppi
Toimistotilaa
850 m2
Vapautuu
Heti vapaa
Ota yhteyttä
Pyydä lisätietoa
