Vuokrataan toimistotilat - Helsinki
Aleksanterinkatu 7, Keskusta, 00100 Helsinki #10816201
Rakennuksen kuvaus:
1930-luvulla rakennettu kiinteistö Aleksantierinkadun ja Fabianinkadun risteyksessä. Kohde on peruskorjattu 2015 ja tilat ovat modernit. Rakennuksessa on seitsemän toimistokerrosta ja liiketila katutasossa, jossa vuokralaisena kahvila. Sijainti on erinomainen ja raitiovaunupysäkit sijaitsevat suoraan kadulla, kohteen edessä. Talon sisäpihalla on turvallinen katettu pyöräparkki ja K-tasolla suihkutilat sekä pukuhuoneet. Katutasossa on hieno aula, jossa mahdollisuus aulapalveluun, ja K- ja 1-tasoilla neuvottelumaailma.
Tilan kuvaus:
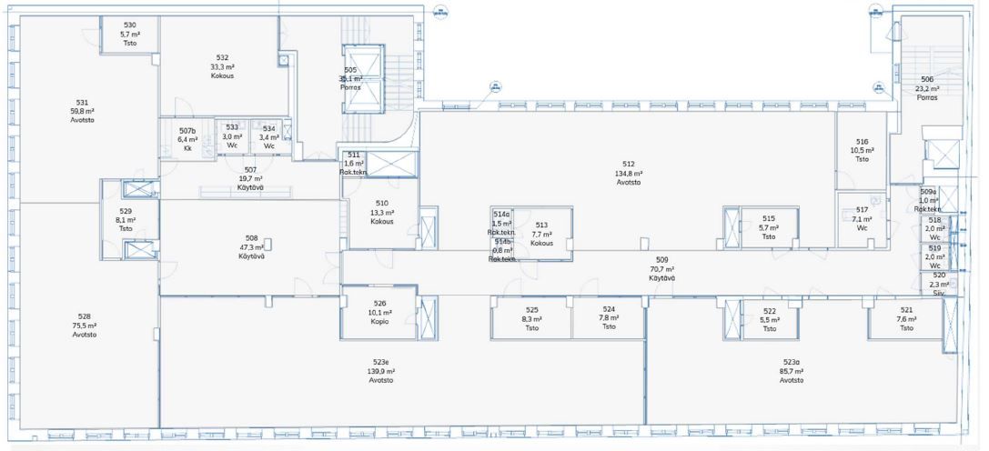
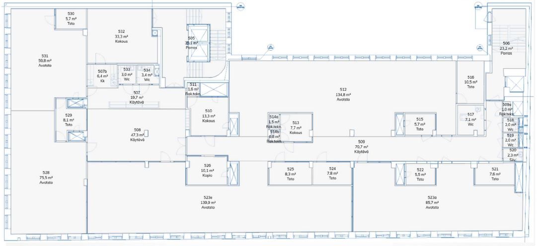
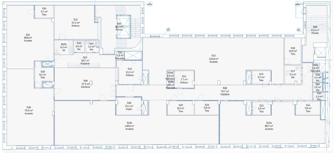
Kiinteistö vuokrataan kokonaan yhdelle käyttäjälle n 7000 m2, tai kerroksittain, jolloin kerroskoko on noin 850 m2. Mahdollisuus mm. kahden kerroksen yhdistelmään, kooltaan noin 1700 m2. Toimistot sijaitsevat kerroksissa 2.-7. Kohde on saneerattu ja tekniseltä tasoltaan moderni. Tilat ovat nykymuodossaan hybriditoimistoa, joissa vetäytymistiloja, avotoimistoa ja jokaisessa kerroksessa oma keittiö. Ylimmässä kerrroksessa on kiinteistön kulmassa tyylikäs keittiö/lounge, josta hienot kaupunkinäkymät. Talon katutason entiseen liiketilaan on toteutettu valoisa aula, jonne näkyvyys kadulta. Aulassa mahdollisuus aulapalveluun. K- ja 1-kerroksissa neuvottelumaailma, johon sisältyy iso, suojeltu seminaaritila, jonka yhteydessä oma palvelukeittiö. Oheinen pohjakuva näyttää peruskerroksen, kerroksen 5.
Kerros: Kaksi kerrosta
