Vuokrataan varastotilat - Helsinki
Valokaari 8, Suutarila, 00750 Helsinki #10816194
Rakennuksen kuvaus:
Vuonna 1978 rakennettu kolmikerroksinen rakennus, jonka alin kerros on varasto/tuotantiloja ja kaksi ylintä kerrosta toimistotilaa. Kohteen piha-alueella on pysäköintialue, lastauslaitureita, roskakatos sekä liikennöintialue. Lisäksi kiinteistössä toimii lounasravintola ja kuntosali sekä käytettävissä on neuvottelutiloja sekä saunoja. Breeam Very Good -sertifioitu.
Tilan kuvaus:
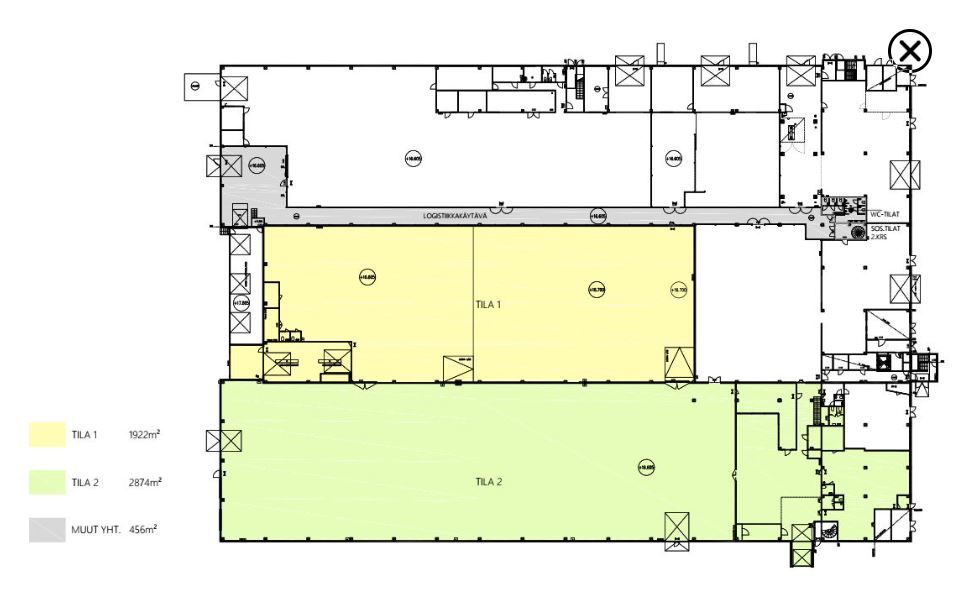
Vapaana isompi varastokokonaisuus, joka ollut aiemmin kolarikorjaamona. Erittäin siisti tila, jonka ohessa myös tilaa asiakaspalvelulle. Sosiaali- ja neuvottelutilat sijaitsevat rakennuksen toisessa kerroksessa. Autopaikkoja on saatavilla 120 kpl.
Varaston vapaakorkeus on 7 metriä.
Kerros: 1
