Vuokrataan toimistotilat - Helsinki
Malminkatu 30, Kamppi, keskusta, 00100 Helsinki #10816193
Rakennuksen kuvaus:
Malminkatu 30 sijaitsee noin 300 metrin päässä Kampin Kauppakeskukselta ja metrolta. Seitsemän maanpäällistä kerrosta ja kolme kellarikerrosta käsittävään toimistorakennukseen on tehty täydellinen peruskorjaus ja tilat ovat teknisesti hyvätasoiset. Rakennuksen omassa autohallissa on 51 autopaikkaa. Lisäksi kiinteistön pihalla on noin 15 pysäköintipaikkaa.
Tilan kuvaus:
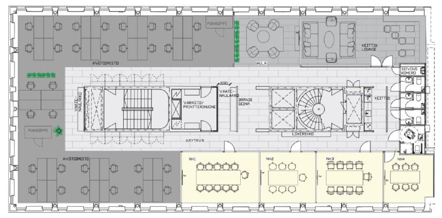
Vuokrattavana kahden kerroksen kokonaisuus, kerroksissa 3. ja 4. Tekninen taso talossa on korkea, hallissa parkkipaikkoja, oma lounasravintola. Tilat muokataan käyttäjälleen, tilat toimivat avotiloina sekä huonetoimistoina.
Kerros: 4
Osoite
Malminkatu 30, 00100 Helsinki
Tilatyyppi
Toimistotilaa
966 m2
Vapautuu
Heti vapaa
Ota yhteyttä
Pyydä lisätietoa
