Vuokrataan toimistotilat - Helsinki
Vattuniemenranta 2, Lauttasaari, 00210 Helsinki #10816192
Rakennuksen kuvaus:
Kiinteistö sijaitsee merellisessä ympäristössä Lauttasaaressa. Kohteelta on vain muutama sata metriä bussipysäkille ja noin kilometri Lauttasaaren mertoasemalle, josta on loistavat yhteydet sekä Helsingin keskustan että Espoon suuntiin. Kiinteistö on rakennettu vuonna 1955 ja siitä löytyy parkkimahdollisuudet niin autohallista kuin pihalta.
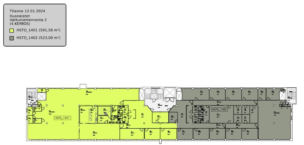
Tilan kuvaus:
Vuokrataan kaksi päällekkäistä kerrosta, yhteensä noin 2226 m2. Kerroskoko on noin 1111 m2. Vuokrattava tila koostuu avotilasta ja huoneista. Tila voidaan muokata uuden käyttäjän toiveiden mukaisesti. Toimisto sijaitsee edustavassa kiinteistössä, merellisessä ympäristössä Lauttasaaressa. Tiloista on upeat näkymät venesatamaan ja merelle. Mahdollisuus vuokrata varastotilaa samasta kiinteistöstä.
Kerros: 4
