Vuokrataan toimistotilat - Helsinki
Vattuniemenranta 2, Lauttasaari, 00210 Helsinki #10816191
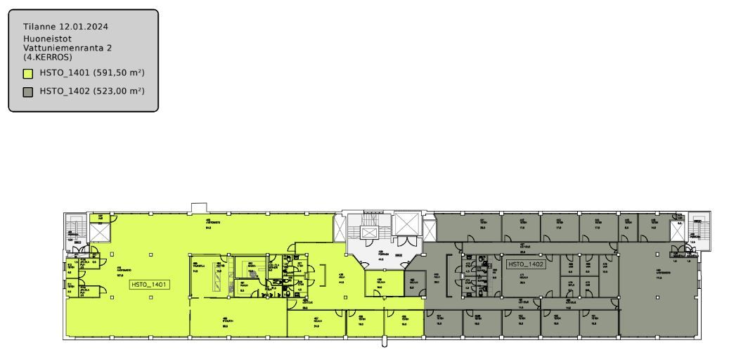
Rakennuksen kuvaus:
Kiinteistö sijaitsee merellisessä ympäristössä Lauttasaaressa. Kohteelta on vain muutama sata metriä bussipysäkille ja noin kilometri Lauttasaaren mertoasemalle, josta on loistavat yhteydet sekä Helsingin keskustan että Espoon suuntiin. Kiinteistö on rakennettu vuonna 1955 ja siitä löytyy parkkimahdollisuudet niin autohallista kuin pihalta.
Tilan kuvaus:
Vuokrataan koko neljäs kerros. Vuokrattava tila koostuu avotilasta ja huoneista. Tila voidaan muokata uuden käyttäjän toiveiden mukaisesti. Toimisto sijaitsee edustavassa kiinteistössä, merellisessä ympäristössä Lauttasaaressa. Tiloista on upeat näkymät venesatamaan ja merelle. Mahdollisuus vuokrata varastotilaa samasta kiinteistöstä.
Kerros: 4
