Vuokrataan toimistotilat - Helsinki
Vattuniemenranta 2, Lauttasaari, 00210 Helsinki #10816188
Rakennuksen kuvaus:
Kiinteistö sijaitsee merellisessä ympäristössä Lauttasaaressa. Kohteelta on vain muutama sata metriä bussipysäkille ja noin kilometri Lauttasaaren mertoasemalle, josta on loistavat yhteydet sekä Helsingin keskustan että Espoon suuntiin. Kiinteistö on rakennettu vuonna 1955 ja siitä löytyy parkkimahdollisuudet niin autohallista kuin pihalta.
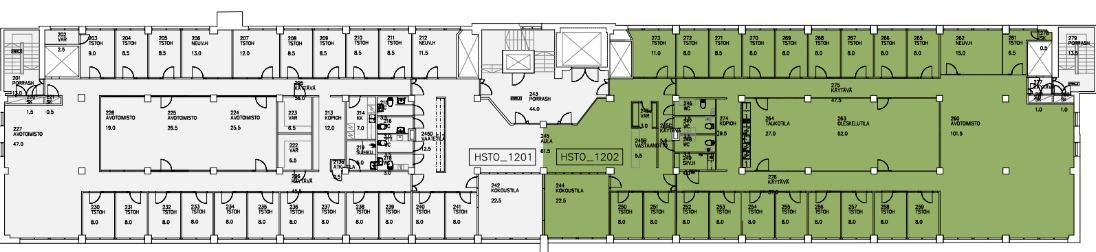
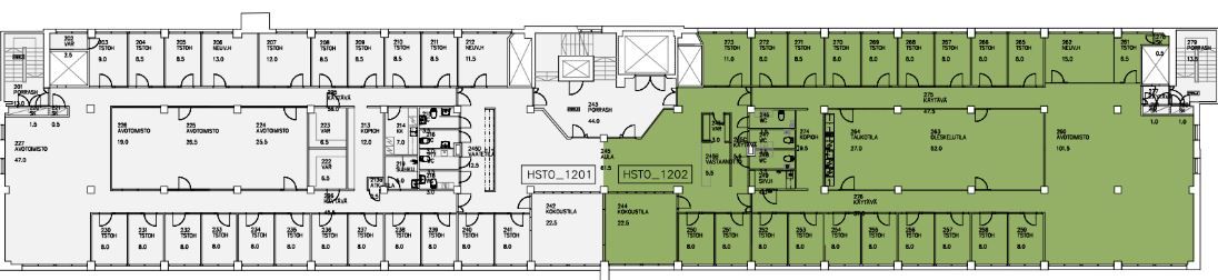
Tilan kuvaus:
Vapaana modernisoitua toimistotilaa toisessa kerroksessa. Tila on siisti ja edustava. Kiinteistö on edustava ja sijaitsee viihtyisässä, merellisessä ympäristössä. Tiloista avautuukin kivat merimaisemat. Vuokralaisella on mahdollisuus vuokrata varastotilaa samasta kiinteistöstä.
Kerros: 2
