Vuokrataan toimistotilat - Helsinki
Siltasaarenkatu 16, Hakaniemi, 00530 Helsinki #10816186
Rakennuksen kuvaus:
Vuonna 1960 rakennettu kiinteistö keskeisellä paikalla Hakaniemessä hyvien kulkuyhteyksien varrella. Hakaniemen alueella on runsaasti palveluita kuten lounasravintoloita ja metrolle on pääsy suoraan kiinteistön katutasosta.
Tilan kuvaus:
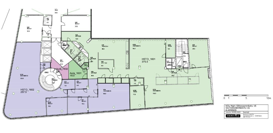
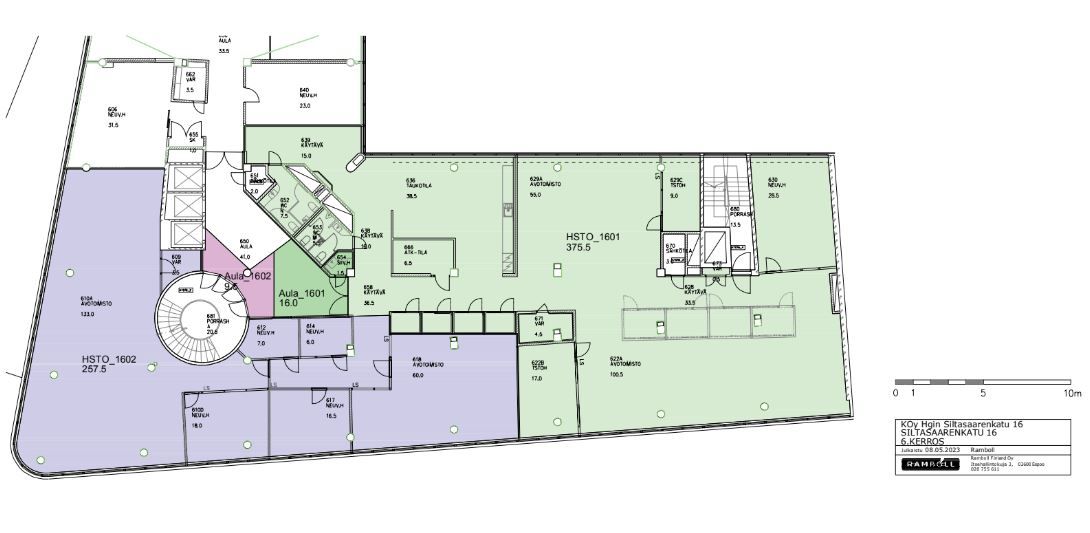
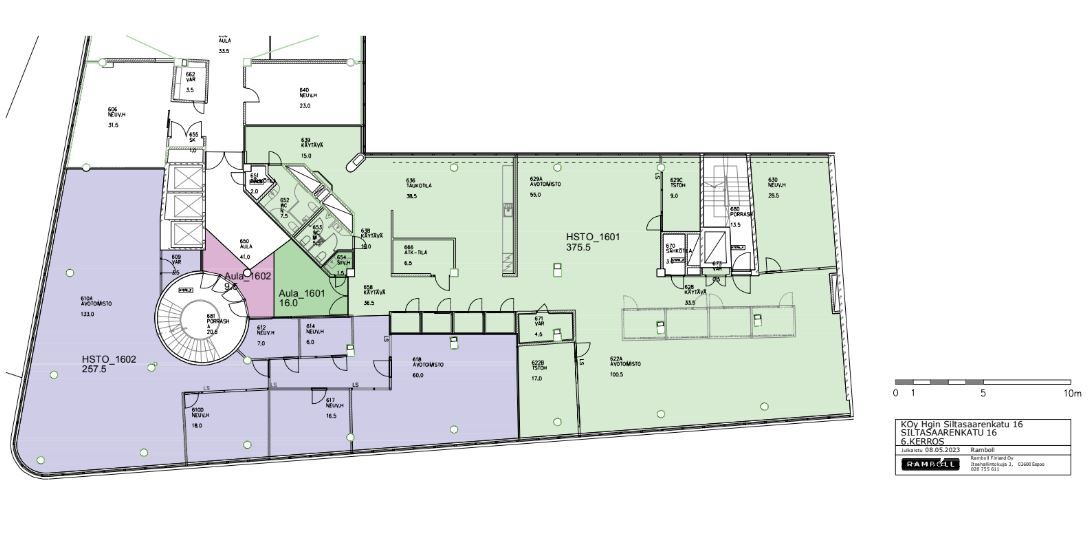
Juuri saneerattu toimisto merinäköaloin! Keskeiseltä paikalta Hakaniemeä vuokrattavana kiva, vastikään remontoitu ja moderni toimisto kuudennesta kerroksesta. Toimistosta on erityisen viihtyisät näkymät Eläintarhanlahdelle. Tilassa on avotilaa sekä neuvotteluhuoneita.
Kerros: 6
Osoite
Siltasaarenkatu 16, 00530 Helsinki
Tilatyyppi
Toimistotilaa
391 m2
Vapautuu
Heti vapaa
Ota yhteyttä
Pyydä lisätietoa
