Vuokrataan toimistotilat - Espoo
Tekniikantie 4 d, Otaniemi, keilaniemi, 02150 Espoo #10816178
Rakennuksen kuvaus:
Vuonna 1990 rakennettu, neljästä rakennuksesta koostuva Aallonharja-kiinteistö on vastikään uudistettu. Tällä persoonallisella toimistokohteella on mahdollisuus huolehtia omasta viljelyalueesta, kuntoilla, huoltaa polkupyörää tai lainata kiinteistön sähköpyöriä. Peruspalvelut ovat myös tasokkaat ja kiinteistöllä on aula, ravintola, kokoustiloja ja auditorio, parkkitilaa sekä vielä pop-up-toimistoja esim. projektitöihin. Sijainti on työmatkalaiselle kätevä ja kohteelta on kävelymatka metroasemalle.
Tilan kuvaus:
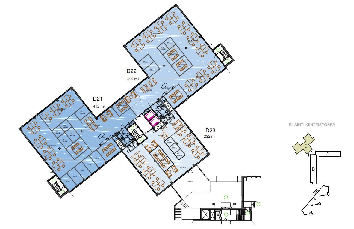
Aallonharjan kiinteistöt ovat uudistettu ja D-talossa kerrokset ovat purettu betonille ja ovat raakantilana muovattavissa uuden käyttäjän tilatarpeisiin sopivaksi. Tilassa onnistuu avotoimisto, huonekonttori tai näiden yhdistelmä. Hyvälaatuinen ja tekniikaaltaan korkeatasoinen kiinteistö. Oheiset havainnekuvat osoittavat muokattavien toimistojen mahdollisuudet. Toinen kerros on vuokrattavissa kokonaisuutena tai jaettavissa osiin, 232-412-412 m2.
Kerros: 2
