Vuokrataan toimistotilat - Espoo
Keilaranta 13, Keilaniemi, 02150 Espoo #10816174
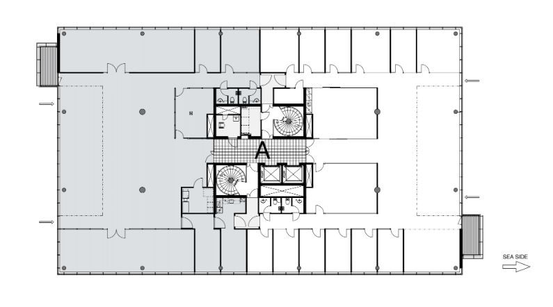
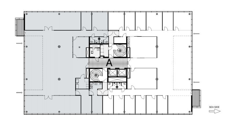
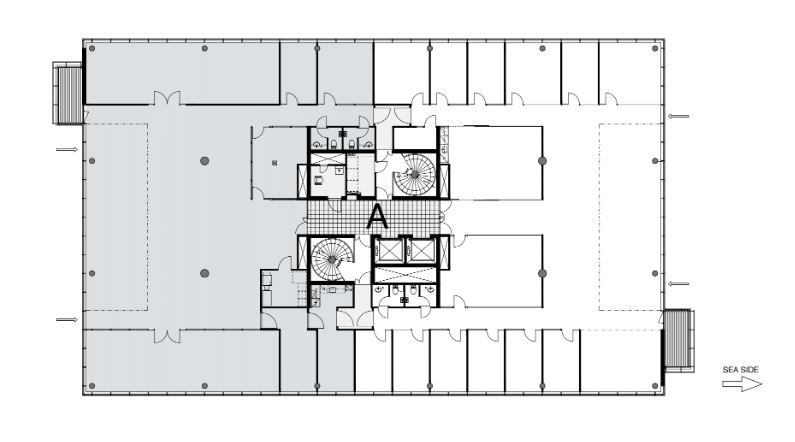
Rakennuksen kuvaus:
HTC Waterfront on vuosien 2008 ja 2009 aikana valmistunut moderni, näyttävä merenrannan toimistokiinteistö, joka koostuu neljästä toimistotalosta. Talot ovat kytkeytyneet toisiinsa sisäisin kulkuyhteyksin tarjoten vuokralaisilleen yhteisölliset työtilat ja kattavat palvelut. Kolme HTC-rakennuksista, talot A-C ovat kuusikerroksisia noin 1000m² kerrospinta-alalla. Vuokralaisilla on käyttävissään lounasravintola, kokoustilat, aulapalvelu ja muut virkistystilat. Kellarissa ja piha-alueella on parkkitilaa.
Tilan kuvaus:
Erittäin valoisaa ja avaraa toimistoa, joka on tyylikkäästi remontoitu. Pohja tosin mahdollistaa muuntelun ja tilankäytön muokkaamisen uudelle vuokralaiselle. Htc:n tilat taipuvat avo- sekä huonetoimistoksi.
Kerros: 5
