Vuokrataan toimistotilat - Helsinki
Lautatarhankatu 6, Kalasatama, 00580 Helsinki #10816169
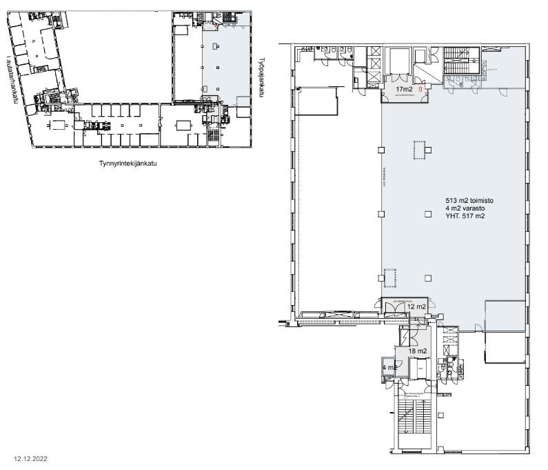
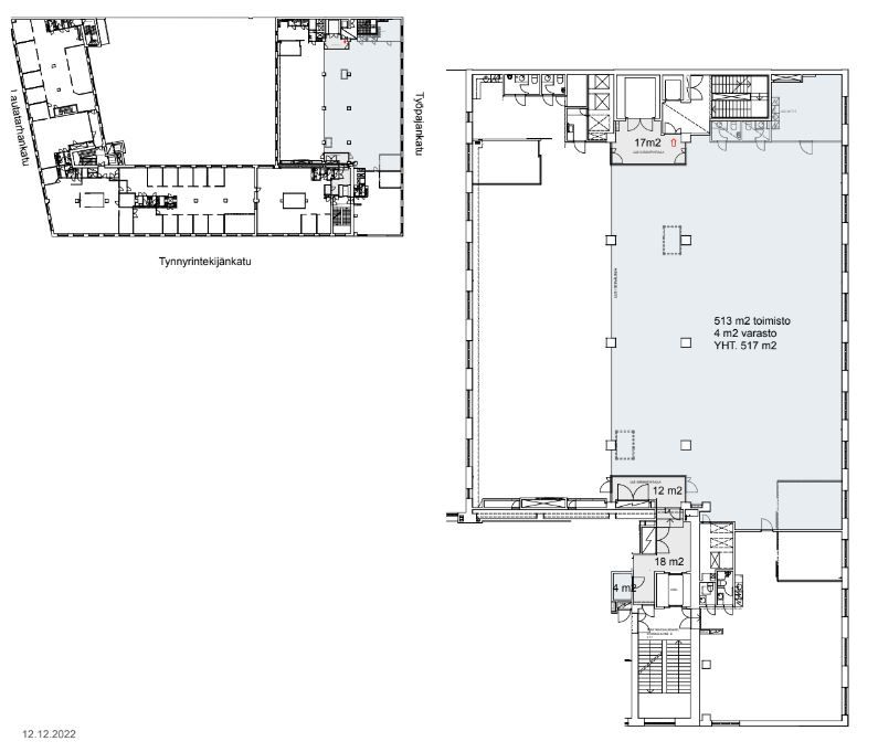
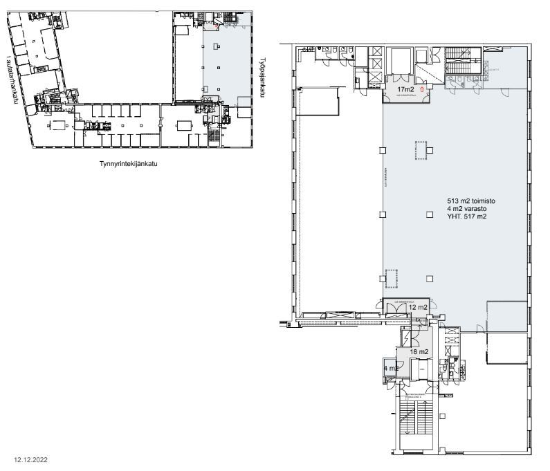
Rakennuksen kuvaus:
1901 rakennettu industriaalihenkinen Lindström talo sijaitsee näkyvällä paikalla Kalasatamassa. Talo on saneerattu vuonna 2003, mutta vanha tehdastunnelma on säilytetty. Kalasataman metroasema on aivan vieressä ja keskustaan pääsee 6 minuutissa. Talon yhteiskäyttöalueet on juuri uusittu jasaatavilla aulapalvelut, lounas- ja catering-palvelut sekä mahdollisuus asiakaspysäköintiin rakennuksen sisäpihalla. Neuvottelutiloja on saatavilla kahden hengen palaveriin sopivasta tilasta aina 100 hengen infotilaisuuteen. Talossa on myös autohalli kellarissa työntekijöiden käyttöön.
Tilan kuvaus:
Tämä toisen kerroksen toimisto on sellaisenaan muuttovalmis avotila. Avotoimiston ohessa tilassa on muutama huone ja vetäytymistila. Tämä industriaalinen kohde tarjoaa moderneja, persoonallisia toimistotiloja isoilla ikkunoilla.
Kerros: 2
