Vuokrataan toimistotilat - Helsinki
Valimotie 17-19, Pitäjänmäki, 00380 Helsinki #10816149
Rakennuksen kuvaus:
Vuonna 1993 valmistunut toimistorakennus Valimotiellä tarjoaa nykyaikaiset toimistotilat ja tehokkaat tilaratkaisut. Rakennuksessa on saatavilla monipuolisia palveluja henkilöstöravintola, aulapalvelut, auditorio kuntosali ja uima-allas, edustustilat, sauna sekä takkahuone. Kiinteistö sijaitsee hyvien liikenneyhteyksien ja palveluiden läheisyydessä. Pihatasolla ja autohallissa on runsaasti pysäköintipaikkoja vuokralaisten käyttöön. Valimon juna-asema on lyhyen kävelymatkan päässä.
Tilan kuvaus:
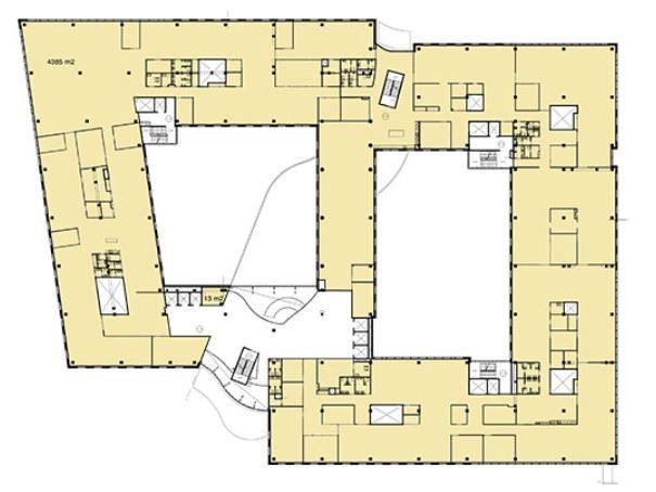
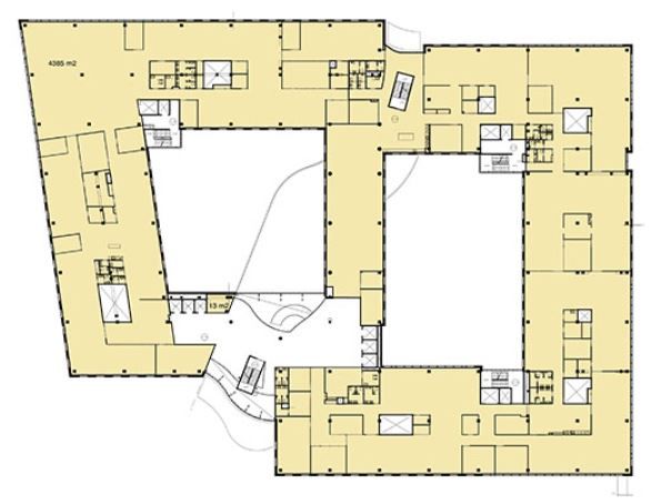
Ison käyttäjän toimisto kahdessa kerroksessa! Vihdintien tuntumassa laadukas toimistokiinteistö jossa vapaana 4. ja 5. kerroksen kokonaisuus, jossa kerroskoko on noin 4.385m² mahdollistaen usean sadan työpisteet yhtenäisessä toimistossa. Vapaana on koko 4. kerros sekä reilu 1700m2 5. kerroksessa. Vuokralaisten käytössä on seuraavat palvelut: aulapalvelu, ravintola, henkilökunnan virkistäytymistilat uima-altaineen, edustustilat ja auditorio. Runsaasti autopaikkoja pihalla ja parkkihalleissa.
Kerros: 3-4
