Vuokrataan toimistotilat - Helsinki
Lautatarhankatu 6, Kalasatama, 00580 Helsinki #10816148
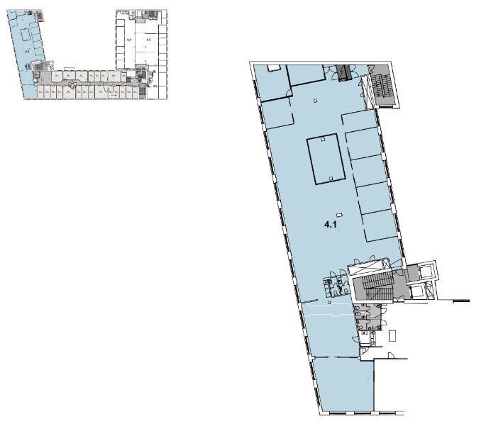
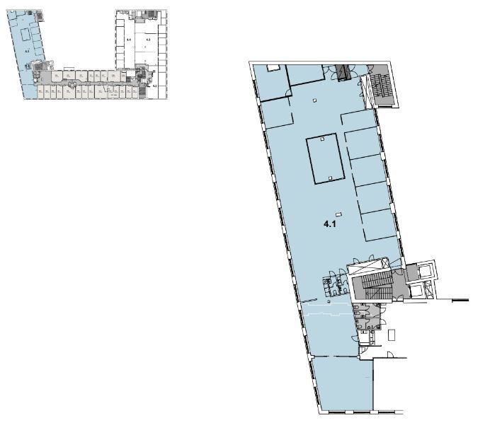
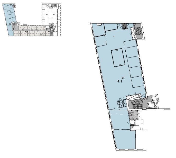
Rakennuksen kuvaus:
1901 rakennettu industriaalihenkinen Lindström talo sijaitsee näkyvällä paikalla Kalasatamassa. Talo on saneerattu vuonna 2003, mutta vanha tehdastunnelma on säilytetty. Kalasataman metroasema on aivan vieressä ja keskustaan pääsee 6 minuutissa. Talon yhteiskäyttöalueet on juuri uusittu jasaatavilla aulapalvelut, lounas- ja catering-palvelut sekä mahdollisuus asiakaspysäköintiin rakennuksen sisäpihalla. Neuvottelutiloja on saatavilla kahden hengen palaveriin sopivasta tilasta aina 100 hengen infotilaisuuteen. Talossa on myös autohalli kellarissa työntekijöiden käyttöön.
Tilan kuvaus:
Punatiilisessä industriaalitalossa vapaana neljännen kerroksen muuttovalmis toimistotila, joka koostuu huoneista ja avotilasta. Tilassa on isot ikkunat ja kaarevia seiniä, jotka tekevät tilasta valoisan ja luovat persoonallista tehdastunnelmaa. Sijaitsee kiinteistön alkuperäisellä tehdaspuolella.
Kerros: 4
