Vuokrataan toimistotilat - Helsinki
Työpajankatu 13, Kalasatama, 00580 Helsinki #10816140
Rakennuksen kuvaus:
Toimistotalo Työpaja on valmistunut vuonna 1989 ja peruskorjattu 2017. Kymmenkerroksinen rakennus on uudistettu moderniksi ja nykyaikaiseksi monikäyttäjätaloksi, jonka suunnittelussa on panostettu nykyvaatimusten mukaiseen muunneltavuuteen ja viihtyisyyteen. Vuokralaisten käytössä on aulapalvelu, auditorio, neuvottelutiloja, lounasravintola, kuntosali ja sosiaalitilat sekä autohalli. Kohde sijaitsee aivan metroaseman sekä Redin vieressä. LEED Gold -sertifioitu.
Tilan kuvaus:
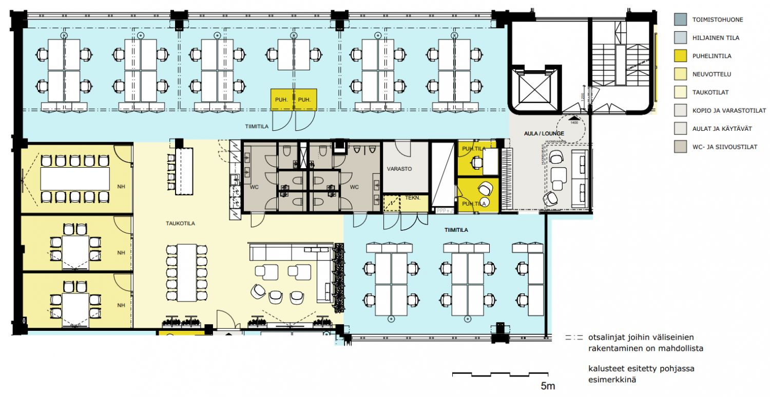
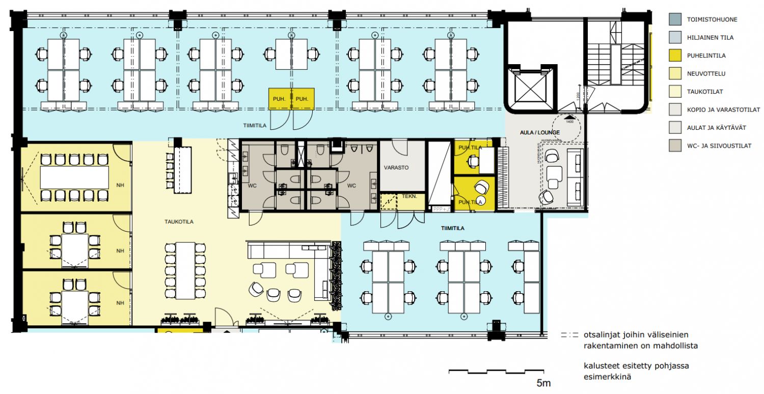
Viidennessä kerroksessa vapaana hyvä avotoimisto! Tämän tasokkaan kohteen tilat ovat modernisoitu vastaamaan nykypäivän vaatimuksia, suunnittelussa on panostettu yritystoiminnan kannalta tärkeään muunneltavuuteen, viihtyvyyteen, tehokkuuteen ja laatuun. Rakennuksen erityisen suuren kerroskoon ansiosta on suurenkin yrityksen henkilöstö istutettavissa yhteen kerrokseen ja samaan tasoon, taaten kuitenkin tarvittavat neuvotteluhuoneet, työtilat sekä keittiöt loungeineen.
Kerros: 5
