Vuokrataan toimistotilat - Helsinki
Aleksanterinkatu 19, Keskusta, 00100 Helsinki #10816136
Rakennuksen kuvaus:
Aleksi-Hermeksen kaunis arvokiinteistö sijaitsee kaupungin parhaalla paikalla Aleksanterinkadun ja Keskuskadun kulmassa, Stockmannia vastapäätä aivan Helsingin ytimessä. Uniikin talon toimistot ovat viihtyisät ja omaleimaisen niistä tekee erityisesti korkea huonekorkeus. Sijaintinsa ansiosta kohde on saavutettavissa helposti kaikilla julkisilla liikennevälineillä ja kiinteistön välittömässä läheisyydessä on myös useita pysäköintilaitoksia. Lisäksi taloa ympäröi kaikki keskustan alueen palvelut ja ravintolat.
Tilan kuvaus:
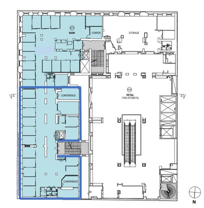
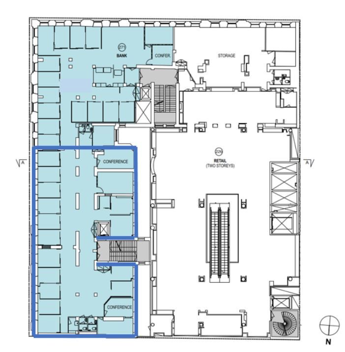
Edustavaa toimitilaa ydinkeskustasta! Tämä 2. kerroksen tila sijoittuu Aleksanterinkadun ja Keskuskadun kulmaan ja tilasta on hienot kaupunkinäkymät. Tila on avotilaa, jossa neuvotteluhuoneita. Tilankäyttöä on mahdollista muokata vuokralaisen tarpeiden mukaan.
Kerros: 2
