Vuokrataan toimistotilat - Helsinki
Konepajankuja 1 fredriksberg a, Vallila, 00510 Helsinki #10816126
Rakennuksen kuvaus:
Fredriksberg sijaitsee trendikkäällä Vallilan Konepajan alueella. Fredriksberg muodostuu neljästä toisiinsa kytketystä, ekologisesta toimistotalosta, joista ensimmäinen A-talo valmistui 2018. Kuusikerroksinen rakennus tarjoaa loft-henkistä, industriaalitiloista inspiroitunutta toimitilaa, joka taipuu monitilaksi ja yhteisölliseen työskentelyyn. Taloissa on hyvät palvelut: ravintoloita, aula, kokoustilat, co-working tiloja, pyörä- ja autoparkki sekä suihkutilat. Kiinteistölle on hyvät yhteydet bussilla ja ratikalla.
Tilan kuvaus:
Vapaana Fredriksbergin A-talon kuudennen kerroksen tasokasta, loft-henkistä toimistotilaa. Korkeaa tilaa täysin uudessa toimistossa. Fredriksberg tarjoaa monipuolisia ja vuokralaista varten yksinomaan räätälöityjä persoonallisia tilaratkaisuja. Isot ikkunat tekevät tiloista valoisan. Uudehkossa kohteessa on moderni tilatekniikka ja tehokas tilankäyttö.
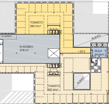
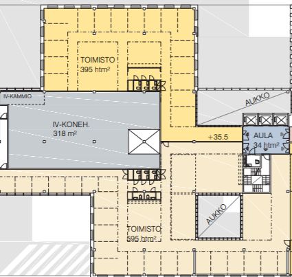
Kerros: 6
