Vuokrataan toimistotilat - Espoo
Metsänpojankuja 1, Pohjois-tapiola, 02130 Espoo #10816122
Rakennuksen kuvaus:
MaarinPortti on toimistorakennus, joka saneerataan täysin vuoden 2023 aikana ja johon etsitään nyt uusia vuokralaisia! Kiinteistöllä on erinomainen sijainti Pohjois-Tapiolassa, aivan Kehä I vieressä. Raidejokeri, bussit sekä runkolinja kulkevat aivan rakennuksen vierestä, eikä metrollekaan ole pitkä matka. MaarinPortin kattaviin palveluihin lukeutuu ainakin aulapalvelu, ravintola ja kahvila. Palveluvalikoima täydentyy vuokralaisten mukaan. Myös Tapiolan keskuksen ja kauppakeskus Ainoan palvelut ovat kivenheiton päässä. Kiinteistölle haetaan LEED Platinum -tason ympäristöluokitusta.
Tilan kuvaus:
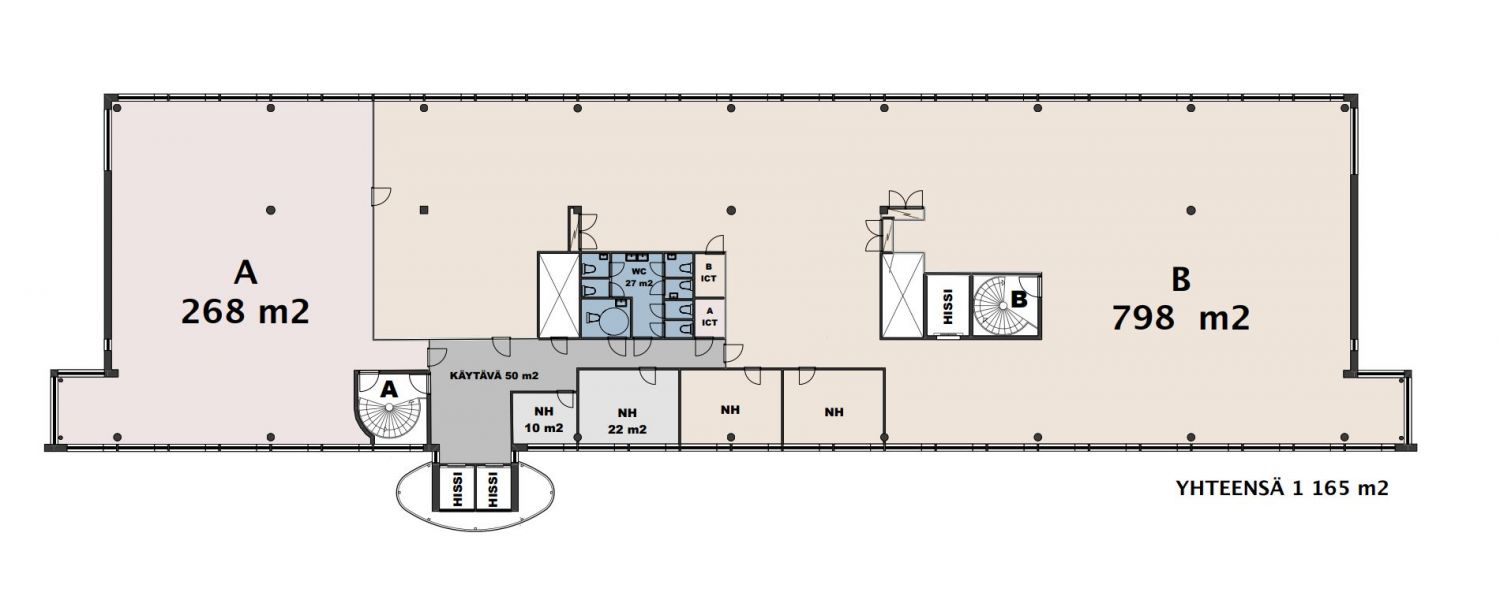
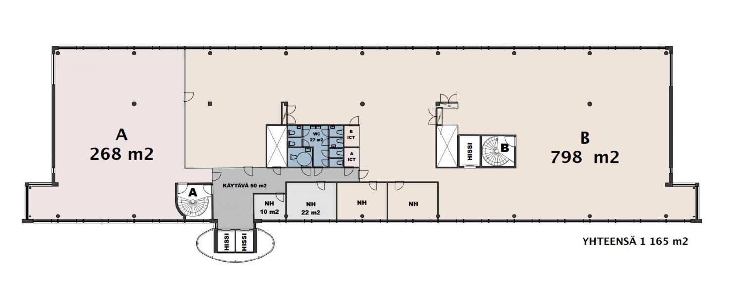
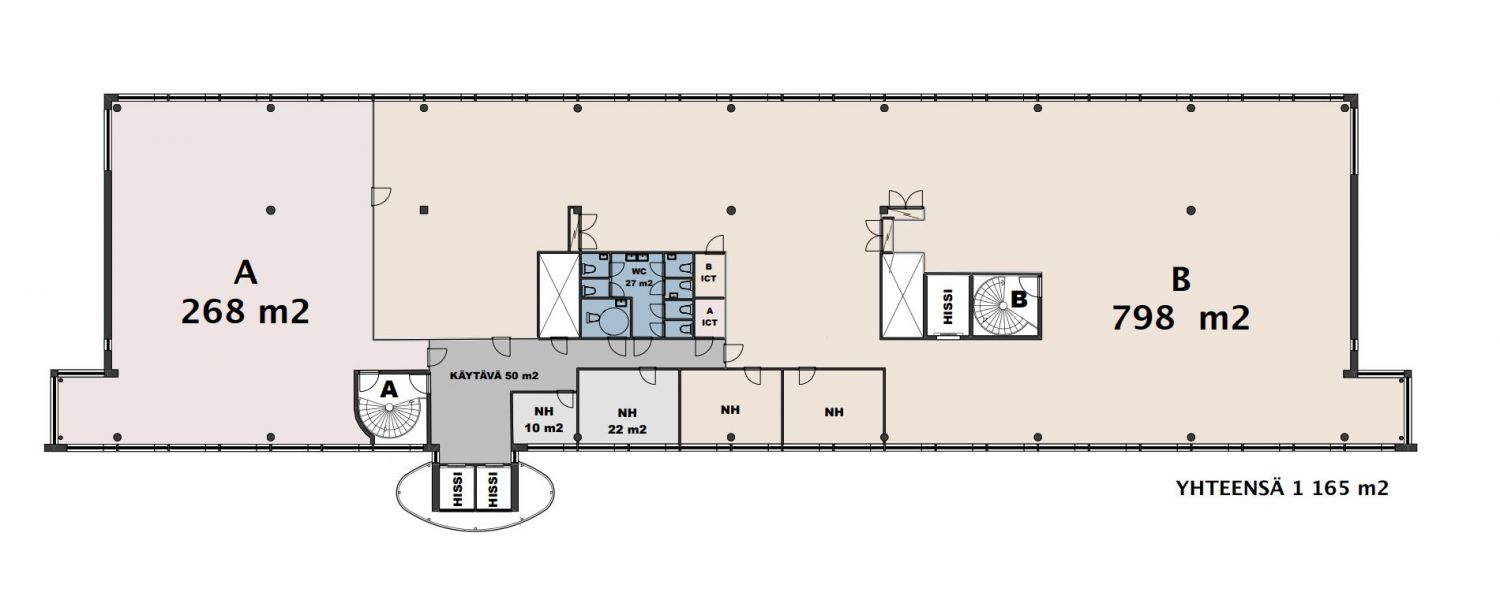
Modernia ja upouutta toimistotilaa loistavalla saavutettavuudella! MaarinPortin toimistorakennukseen toteutetaan mittava saneeraus, jossa rakennus modernisoidaan vastaamaan nykypäivän toimitilatarpeita. Ensimmäiseen kerrokseen on suunnitteilla käyttäjille yhteisiä tiloja sekä aulapalvelu ja kerroksiin 2-5 muuntojoustavia toimistotiloja, joiden tilatoteutus katsotaan yhdessä vuokralaisen kanssa. Ylimmässä kerroksessa sijaitsee näköalaterassi ja katettu terassi ja sinne voidaan toteuttaa esimerkiksi wellness-palveluita.
Koko rakennus voidaan myös vuokrata yhden vuokralaisen käyttöön.
Kerros: 2-5
