Vuokrataan toimistotilat - Helsinki
Kaivokatu 10, Keskusta, 00100 Helsinki #10816117
Rakennuksen kuvaus:
Helsingin keskipisteessä sijaitseva perinteikäs Kaivotalo on rakennettu 1955. Se sijaitsee vastapäätä päärautatieasemaa Kaivopihalla ja kulkuyhteydet rakennukselle ovat vertaansa vailla ja mm. suoraan rakennuksen alla on pääsy metroon. Rakennuksen ensimmäiset kerrokset ovat liiketilakäytössä ja ylimmät kerrokset toimistotiloina. Tiloista on hienot näkymät ja ne ovat monin tavoin modernit.
Tilan kuvaus:
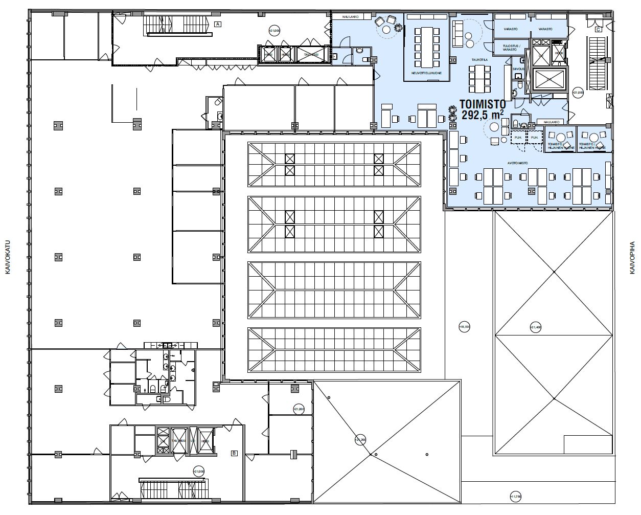
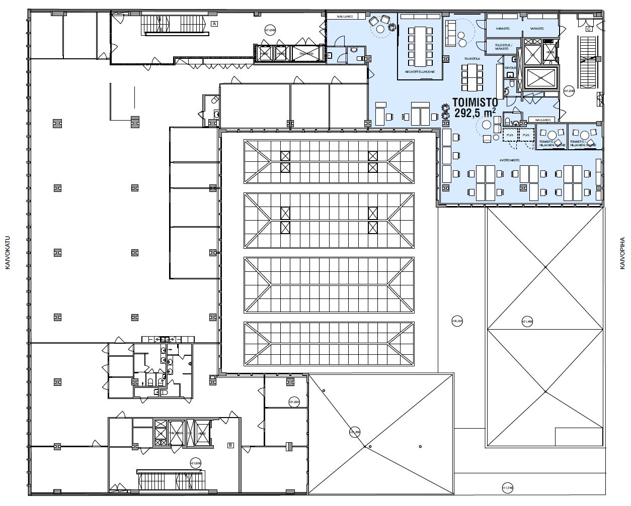
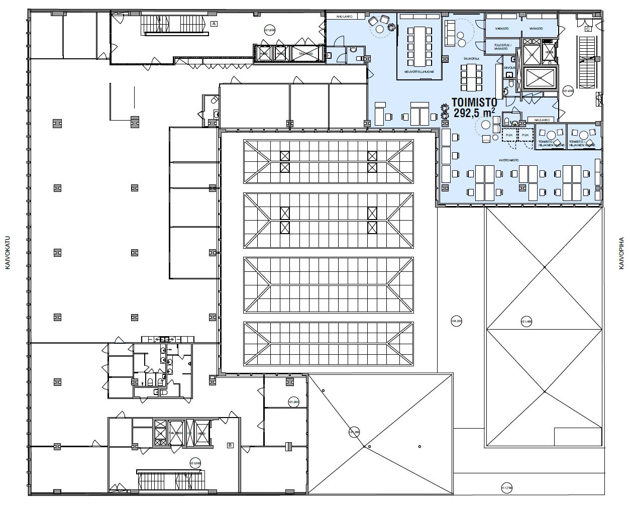
Siisti ja toimiva 6. kerroksen toimisto vuokrattavissa Kaivotalossa. Käyttövalmis tila, jossa kuitenkin mahdollisuus vaikuttaa tilaratkaisuihin vuokralaisen tilatarpeen mukaan.
Kerros: 6
Osoite
Kaivokatu 10, 00100 Helsinki
Tilatyyppi
Toimistotilaa
292 m2
Vapautuu
Heti vapaa
Ota yhteyttä
Pyydä lisätietoa
