Vuokrataan liiketilat - Helsinki
Katajanokanlaituri 4, Katajanokka, keskusta, 00160 Helsinki #10816109
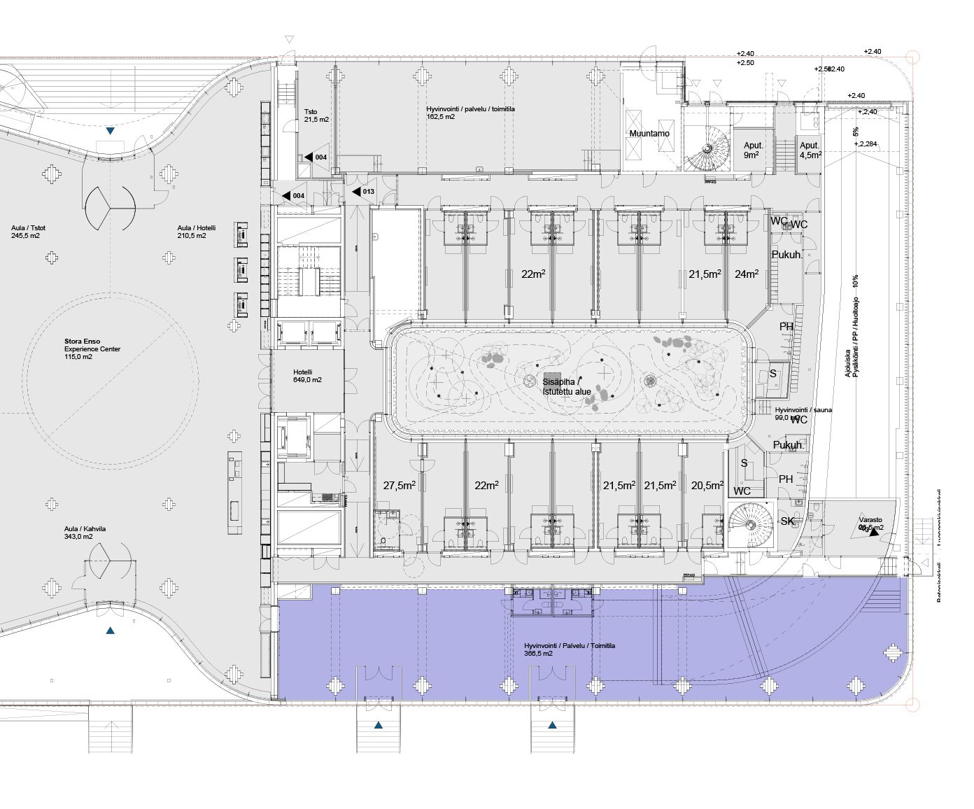
Rakennuksen kuvaus:
Katajanokan Laituri on parhaillaan rakenteilla oleva toimitalo, joka sijaitsee erinomaisella paikalla Helsingin Katajanokalla meren rannalla. Tämä kiinteistö on osa tärkeää kulttuuriympäristöä ja tarjoaa myös julkisia tiloja merellistä tunnelmaa arvostaville kaupunkilaisille ja matkailijoille. Puupinnat ja uniikki arkkitehtuuri antavat rakennukselle vahvan tunnistettavuuden muihin alueen kiinteistöihin verrattuna. Rakennuksen päärunkomateriaalina käytetään Stora Enson valmistamia massiivipuuelementtejä. Kiinteistöstä on vuokrattavissa tilaa noin 16 000 neliömetriä. Rakennukseen suunnitellaan hotellia, ravintolaa, kattoterassia sekä toimitiloja yrityksille ja palveluntarjoajille. Kiinteistölle haetaan valmistumisen jälkeen LEED Platinum -ympäristösertifikaattia.
Tilan kuvaus:
Katutason merenpuoleinen liiketila, joka sopisi hyvin esimerkiksi showroomiksi hienojen maisemien ansiosta.
Kerros: 1
