Vuokrataan toimistotilat - Helsinki
Porkkalankatu 22, Ruoholahti, keskusta, 00180 Helsinki #10816079
Rakennuksen kuvaus:
Ruoholahdessa keskeisellä paikalla sijaitseva kohde tarjoaa kaikki nykyaikaisen toimistotyön vaatimat olosuhteet. Kiinteistö on viihtyisä ja sen tilat monipuoliset, sallien erilaiset tilatoteutukset asiakkaan tarpeen mukaan. Talon isot ikkunat takaavat luonnonvalon pääsyn tiloihin. Talon palvelut ovat kattavat ja palveluvalikoimaan kuuluu mm. aulapalvelu, ravintola ja kokoustilat. Metroasema sijaitsee vastapäätä ja Ruoholahden Kauppakeskus osana kiinteistöä.
Tilan kuvaus:
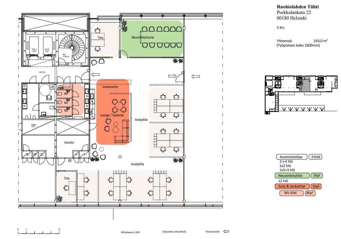
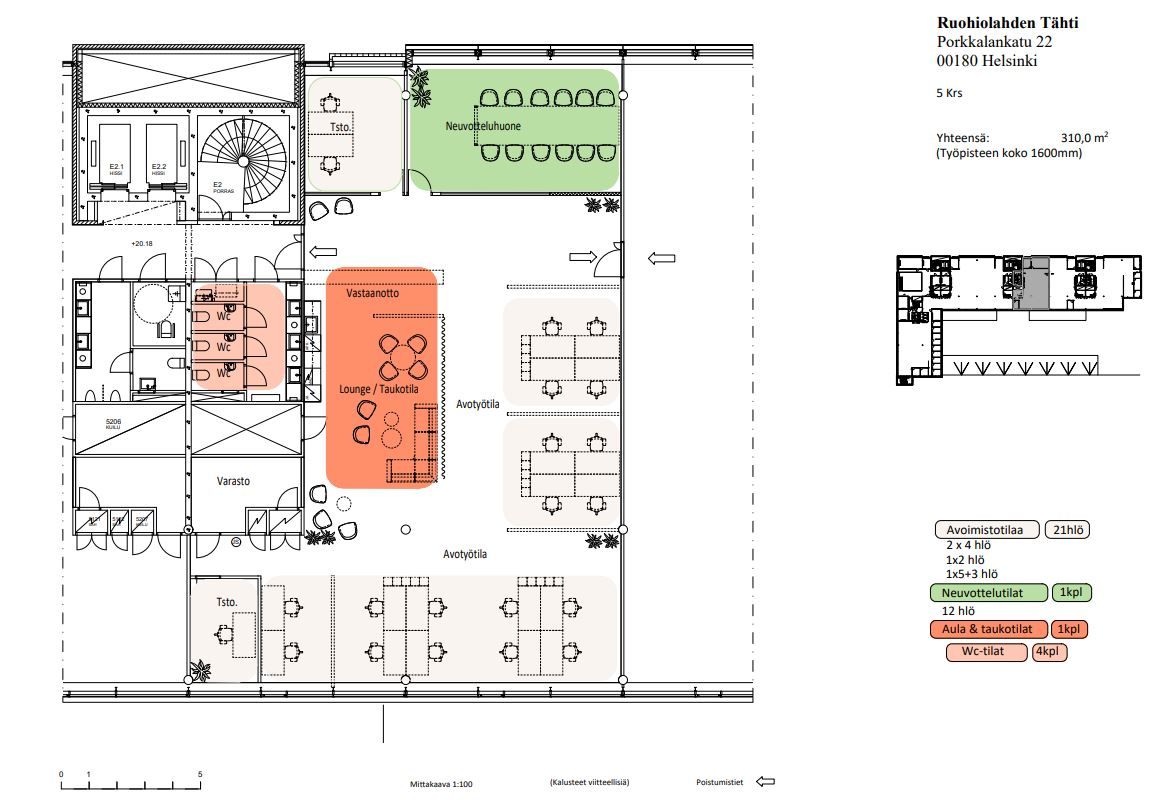
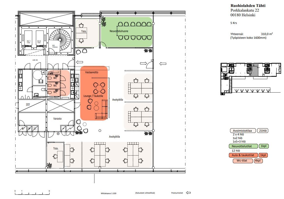
Vuokrattavana viidennen kerroksen muuttovalmis toimisto modernissa toimistotalossa aivan Ruoholahden metroaseman kupeesta. Tilassa on tehokasta avotilaa, kaksi neuvotteluhuonetta ja yksi työhuone.
Kerros: 4
