Vuokrataan toimistotilat - Helsinki
Hämeentie 11, Sörnäinen, 00530 Helsinki #10816024
Rakennuksen kuvaus:
Tämä historiallinen toimistorakennus on alun perin rakennettu 1927 ja se on tunnettu Osuusliike Elannon entisenä pääkonttorina. Hämeentien maamerkki on vastikään saneerattu ja nimetty Väinöksi, toimistotaloksi, jossa arvokas julkisivu kohtaa modernin toimiston. Rakennus luo yrityksen toiminnalle ja henkilöstölle ainutlaatuiset puitteet ja viihtyvyyttä lisäävät katutasoon avautuneet tasokkaat ravintolat. Talon ylimmässä pääkerroksessa on lisäksi juhlasali ja monitoimisali sauna- ja pukeutumistiloineen vuokralaisten käytössä.
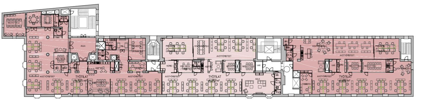
Tilan kuvaus:
Vapaana uutta, upeaa toimistotilaa vastikään saneeratusta toimistokiinteistöstä Väinö. Talossa viihtyisyys, arvokkuus ja tekninen nykyaikaisuus kohtaavat ja vuokralaisille toteutetaan räätälöidysti yrityksen tarpeiden mukaiset toimitilat.
Kerros: 3
