Vuokrataan toimistotilat - Espoo
Miestentie 7 (b talo), Otaniemi, keilaniemi, 02150 Espoo #10816012
Rakennuksen kuvaus:
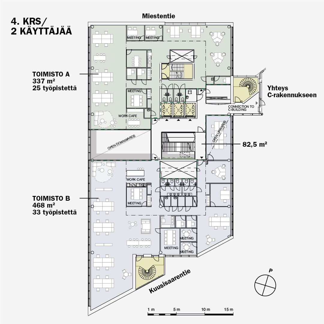
Swing -hankkeen toimistotalon ja hotellin käsittävä 2. vaihe valmistui 2021 lopulla. Olemassa oleva toimistotalo ja kaksi uutta rakennusta liitetään toisiinsa ja vuokralaiset voivat hyödyntää kaikkien talojen palveluita, kuten ravintolaa, aulaa ja lounge-alueita, neuvotteutiloja ja kuntosalia. Swing Housessa hyvinvointi on tärkeää ja luodaan WELL ?sertifioidut työskentelyolosuhteet. Kohde tarjoaa tiloja alkaen 25 hengen yrityksestä aina suuriin yrityksiin. Kerroskokoa on n. 900m2 ja sisäportaat ovat mahdolliset.
Tilan kuvaus:
Mahdollisuus vuokrata täysin uusi, yrityksellesi kustomoitu toimisto Swing House -kohteesta, josta tarjolla vielä useita tilakokoja, esim. kokonainen kerros 3. kerroksessa. Uudiskohde on juuri valmistunut ja tilat olevat erityisen modernit ja mahdollistavat tilasuunnittelut yhdessä vuokralaisen kanssa. Rakentamisessa keskitytty hyvinvointiin eli laadukkaaseen sisäilmaan, materiaaleihin, luonnonvaloon ja työntekijöiden vireyteen sekä liikkuvuuteen.
Kerros: 3
