Vuokrataan liiketilat - Helsinki
Työpajankatu 9, Kalasatama, 00580 Helsinki #10816009
Rakennuksen kuvaus:
Uudistuva Trooli on toimistokortteli palveluja ja yhteisöllisyyttä arvostavalle. Troolin sydän on sen korttelipiha, joka tullaan uudistamaan vihreäksi ja vehreäksi kohtaamispaikaksi. Uudistettu on jo yhteiskäyttöiset suihkut, kuntosali sekä pyöräparkki, jossa on pyörähuoltomahdollisuus. Kuntosali sisältyy kohteessa toimistovuokraan. Troolin palveluihin lukeutuu myös aulapalvelu, ravintola, catering ja mm. autopesupalvelu sekä hieroja. Kohteelta on vain lyhyt kävelymatka metroasemalle. LEED Gold -sertifioitu.
Tilan kuvaus:
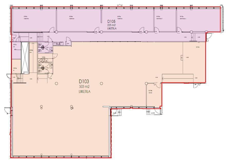
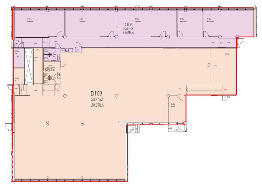
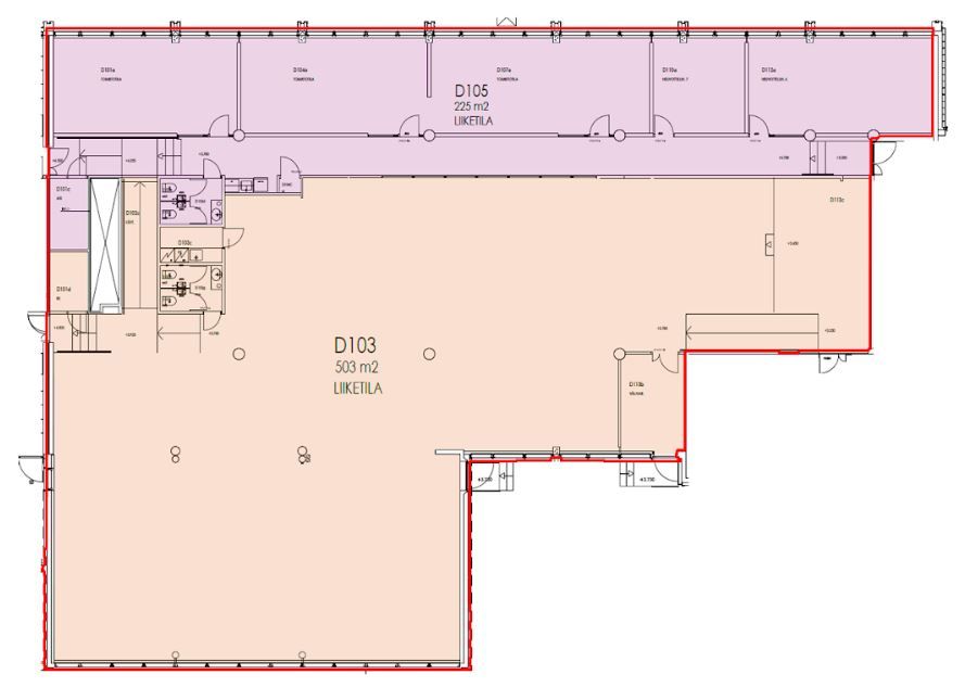
Liiketila/toimisto/showroom katutasossa. Todella monipuolinen raaka-tila, joka voidaan rakentaa erilaisiin käyttötarkoituksiin. Huonekorkeus vaihtelee 2,7-3 metrin välillä. Tilasta on yhteys sisäpihan lastauslaiturille, joten logistiikka tilaan on sujuvaa. Vuokrattava ala on koko pohjakuvan osoittama tila, oranssin ja vaaleanpunaisen tilan yhdistelmä. Tila ei sovellu liikuntakäyttöön.
Kerros: Katutaso
