Vuokrataan toimistotilat - Helsinki
Töölönkatu 4, Etu-töölö, keskusta, 00100 Helsinki #10816008
Rakennuksen kuvaus:
Etu-Töölössä aivan Eduskuntatalon vieressä sijaitseva Kuparitalo on toimistokiinteistö hyvien kulkuyhteyksien varrella. Moderni Kuparititalo on entinen Outokummun pääkonttori ja sen historiasta kertoo julkisivussa ja sisätiloissakin käytetty kupari. Kohteessa on vastaanotto, neuvottelukeskus, edustussauna ja pieni pysäköintihalli. Kauppakeskus Kamppi metroineen sijaitsee aivan kävelyetäisyyden päässä. Kohteen kuntosalin käyttö sisältyy vuokraan. Katutasossa on tasokas viini- ja ruokaravintola.
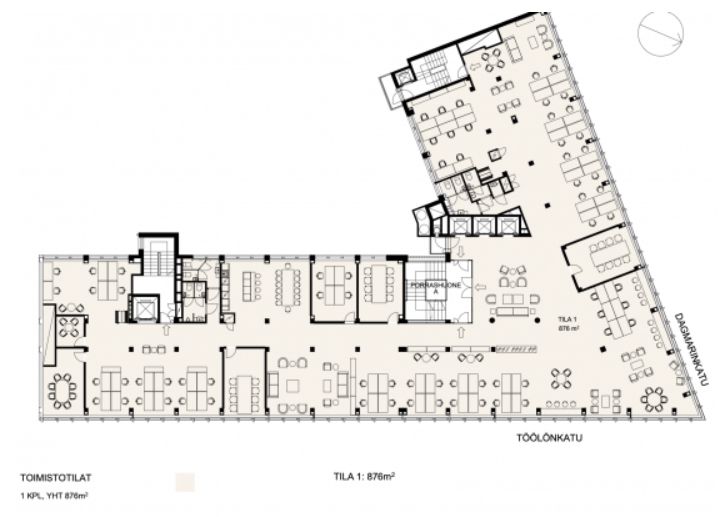
Tilan kuvaus:
Vapaana kahden kerroksen kokonaisuus, kerroskoko on noin 880 m2. Nämä arvokkaat pääkonttoritason tilat räätälöidään vuokralaiselle. Tilat ovat valoisat ja viihtyisät.
Kerros: 6-7
