Vuokrataan toimistotilat - Helsinki
Valimotie 9-11, Pitäjänmäki, 00380 Helsinki #10815985
Rakennuksen kuvaus:
Valimotie 9-11 on vuonna 1998 rakennettu moderni ja monipuolinen toimistorakennus, jossa yhdistyy avoimet tilaratkaisut sekä kattava palvelutarjonta. Kiinteistöllä on uniikki muoto ja se koostuu neljästä kolmionmuotoisesta siivestä, jotka muodostavat lähes 3.000m² kerroskoon. Kerrokset ovat jaettavissa joustavasti. Talossa on tyylikäs aula vastaanottopalveluineen sekä tasokas ravintola. Lisäksi on kokoustilat, saunaosasto ja parkkitilaa. Valimon juna-asema sijaitsee lyhyen kävelymatkan päässä.
Tilan kuvaus:
Toisen kerroksen moderni toimisto, valoisassa ja laadukkaassa toimistotalossa.
Pääosin avotilaa, tyylikäs taulotila sekä kokoushuoneita. Muokattavissa vyöhyketoimistoksi tai asiakkaan toivomalla tavalla.
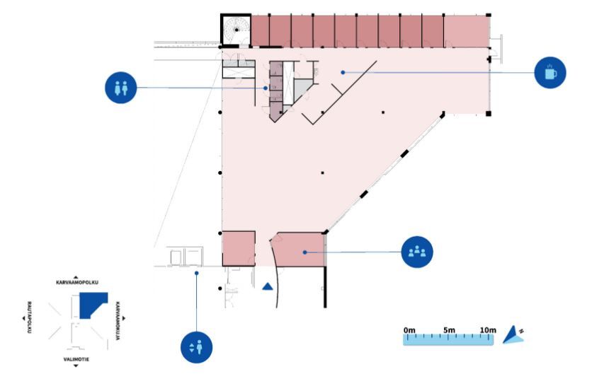
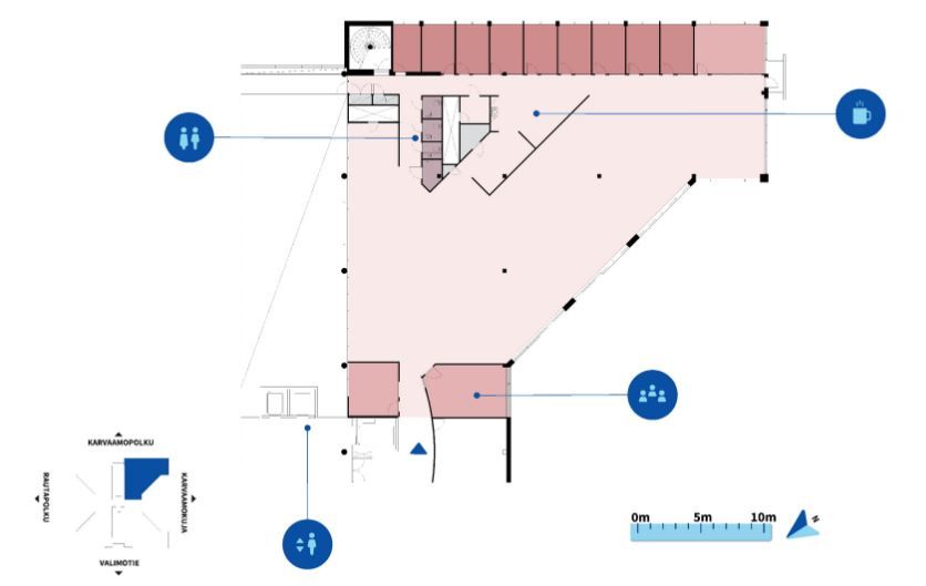
Kerros: 2
