Vuokrataan toimistotilat - Helsinki
Hitsaajankatu 22 opus 2, Herttoniemenranta, 00810 Helsinki #10815979
Rakennuksen kuvaus:
Opus Business Park koostuu kolmesta vuosina 2004-2008 valmistuneesta rakennuksesta. Helposti muunneltavat ja nykyaikaiset tilat on varustettu ajanmukaisella talotekniikalla, mm. huonekohtaisella ilmastoinnilla sekä nopeilla tietoliikenneyhteyksillä. Hyvät käyttäjäpalvelut: aula, ravintola ja catering, kuntosali, neuvottelutilat ja auditoriot sekä esimerkiksi postitus. Opus sijaitsee lähellä Itäväylää ja Herttoniemen metroasemaa, joten liikkuminen sinne on jouhevaa sekä julkisilla että henkilöautolla.
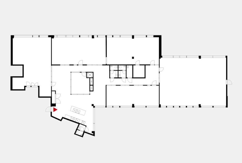
Tilan kuvaus:
Vapaana viidennen kerroksen siistiä toimistotilaa.
Kerros: 5
Osoite
Hitsaajankatu 22 opus 2, 00810 Helsinki
Tilatyyppi
Toimistotilaa
552 m2
Vapautuu
Heti vapaa
Ota yhteyttä
Pyydä lisätietoa
