Vuokrataan toimistotilat - Espoo
Mänkimiehentie 4, Kauklahti, 02780 Espoo #10815967
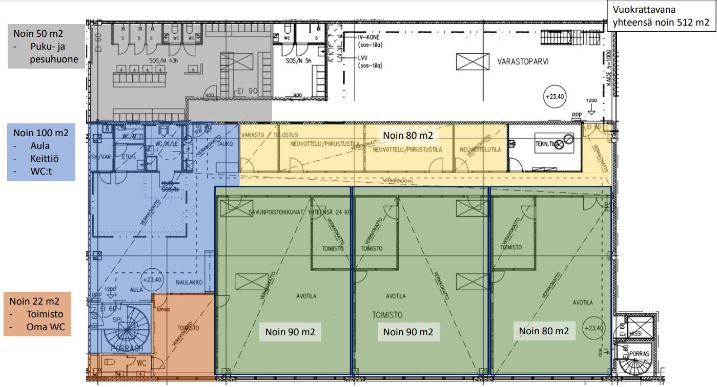
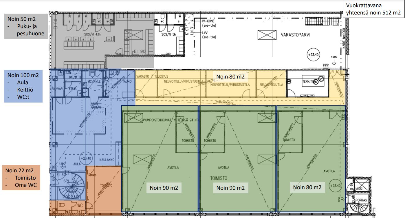
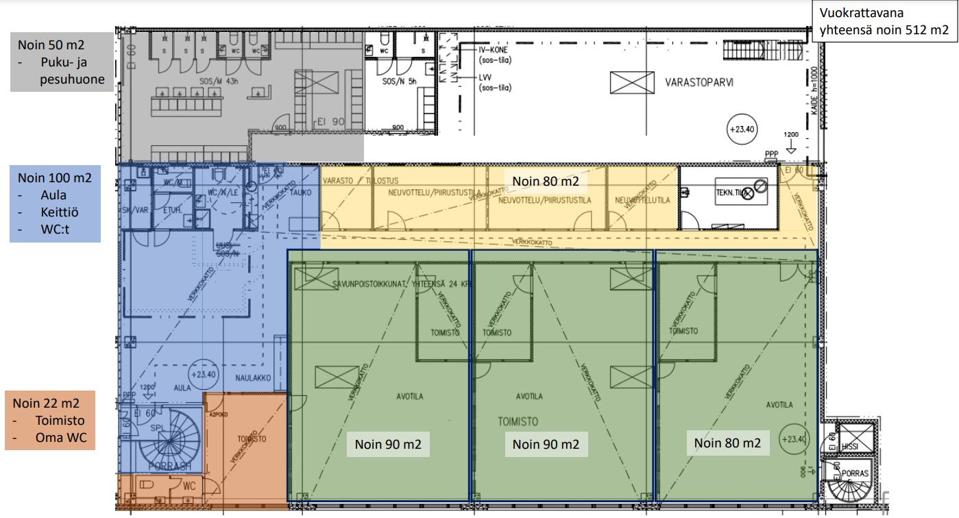
Rakennuksen kuvaus:
Mittava varastokiinteistö, jossa yhteensä noin 17.000 m2. Rakennuksessa on erillinen toimistosiipi, jonka lisäksi varastojen yläpuolella on nykyaikaista toimistotilaa.
Kohde sijaitsee liikenteellisesti hyvin saavutettavissa. Kaukalahdenväylä vieressä, josta yhteydet molempiin suuntiin Länsiväylälle sekä Kehä III:lta itään ja länteen. Juna-asema kävelyetäisyydellä ja linja-autot vielä lähempänä.
Tilan kuvaus:
Siistiä ja nykyaikaista toimistoa Kauklahdessa logistiikka-/varastorakennuksen toisessa kerroksessa. Tilat on tehty kaksi vuotta sitten. Tilaan liittyy kaksi sisäänkäyntiporrasta ja hissi sekä erillinen pesu-ja pukuhuone. Halutessa tavarakuljetuksiin käytettävissä lastauslaituri.
Kerros: 2
