Vuokrataan toimistotilat - Helsinki
Mannerheimintie 15, Taka-töölö, 00260 Helsinki #10815961
Rakennuksen kuvaus:
Oopperatalon edessä sijaitseva Mannerheimintie 15 eli Sakkaroosi koostuu kahdesta rakennuksesta, osista A ja B. Punatiilinen A on vuonna 1951 rakennettu entinen Töölön Sokeritehtaan toimistotalo ja B vuoden 1974 lasinen pääkonttorirakennus. Sokeritehtaan historiasta kertoo talon edustan Sokerityttö-veistos. Molemmissa taloissa on kaukokylmäjäähdytykset ja erikseen vuokrattavia autopaikkoja pihalla ja hallissa. Ylimmistä kerroksista on hienot näkymät Töölönlahdelle. Talot sijaitsevat Mannerheimintien, Runeberginkadun ja Helsinginkadun risteyksessä.
Tilan kuvaus:
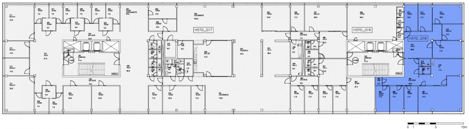
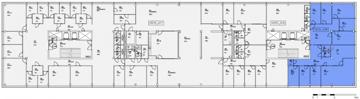
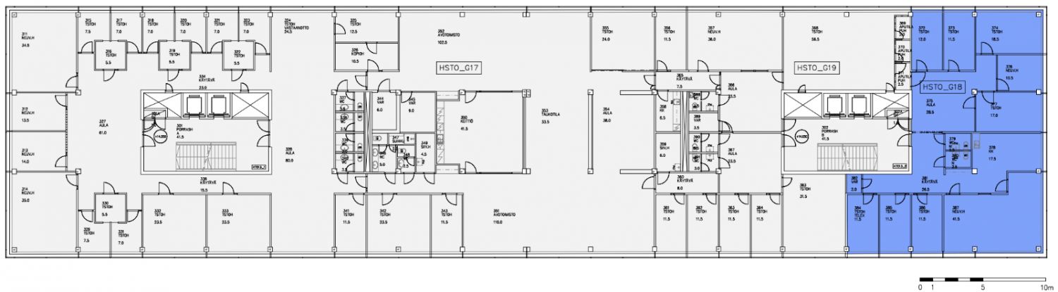
Vuokrataan Mannerheimintie 15 B-talosta kolmannen kerroksen siisti toimistotila, jossa kaksi neuvotteluhuonetta. Muunnettavissa avotilaksi.
Kerros: 3
