Vuokrataan toimistotilat - Helsinki
Hermannin rantatie 10, Kalasatama, 00580 Helsinki #10815949
Rakennuksen kuvaus:
Toimistokiinteistö näkyvällä paikalla vilkkaan Hermannin Rantatien varrella. Talo on saneerattu vastaamaan nykyajan vaatimuksiin ja tiloissa on jäähdytys sekä CAT6-tietoliikennekaapelointi. Talossa on kulunvalvonta, autohalli ja tavara- sekä henkilöhissit. Talon viimeistely on tyylikäs ja viihtyvyyttä osassa tiloista lisää kaunis merinäköala. Rakennuksessa on ravintola ja edustussaunatilat sekä kattoterassi. Metro ja Redi on lyhyen kävelymatkan päässä.
Tilan kuvaus:
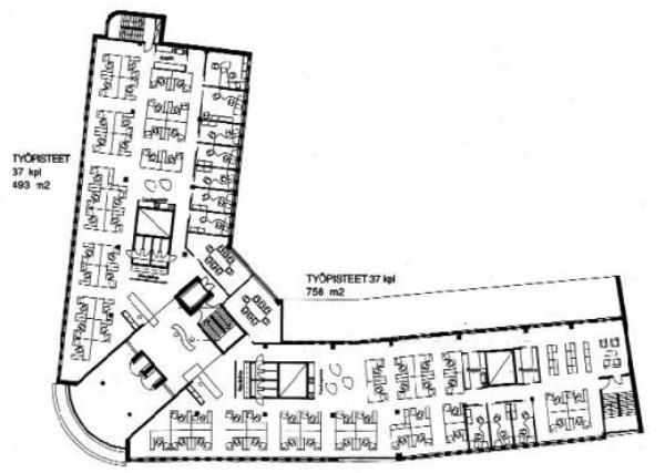
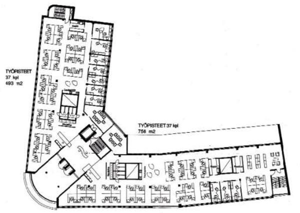
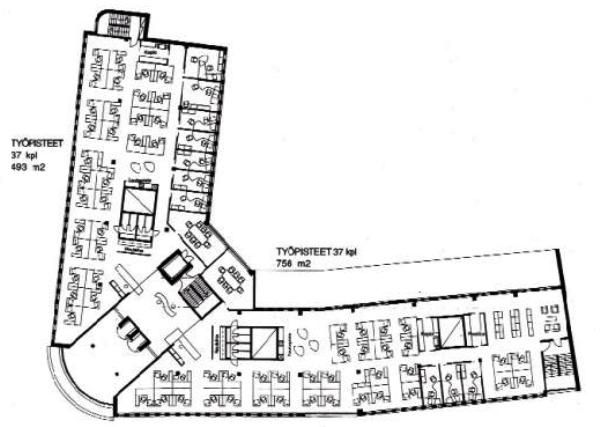
Kalasataman metroaseman kupeessa vapaana vuokrattavaksi valoisaa neljännen kerroksen toimitilaa. Tila on remontoitava ja uudella vuokralaisella on mahdollisuus vaikuttaa tilan materiaaleihin sekä tilankäyttöön.
Kerros: 4
