Vuokrataan toimistotilat - Helsinki
Lautatarhankatu 6, Kalasatama, 00580 Helsinki #10815938
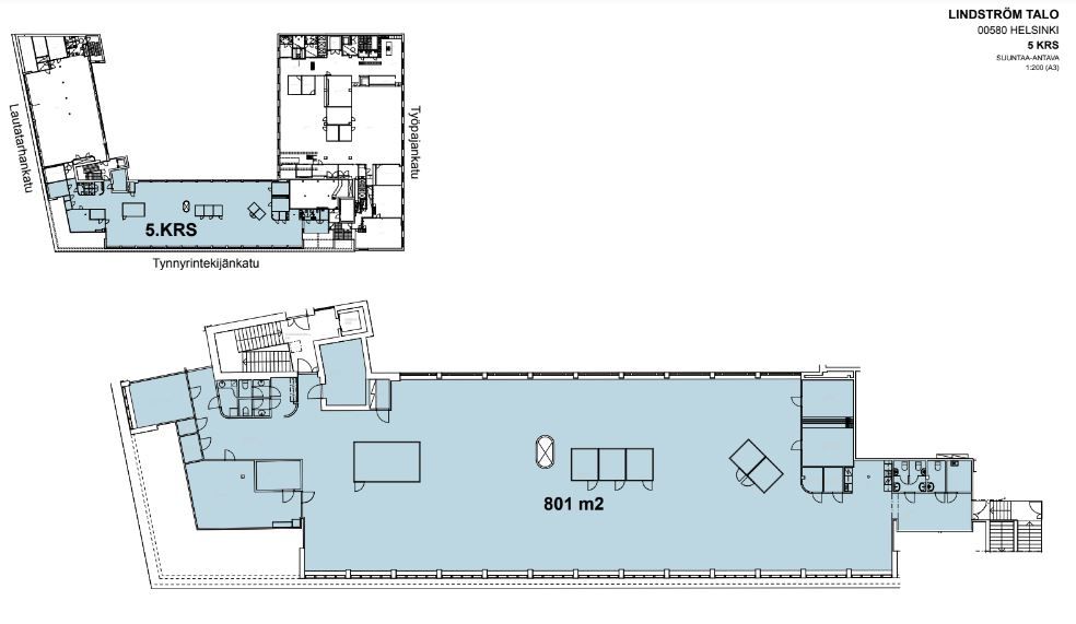
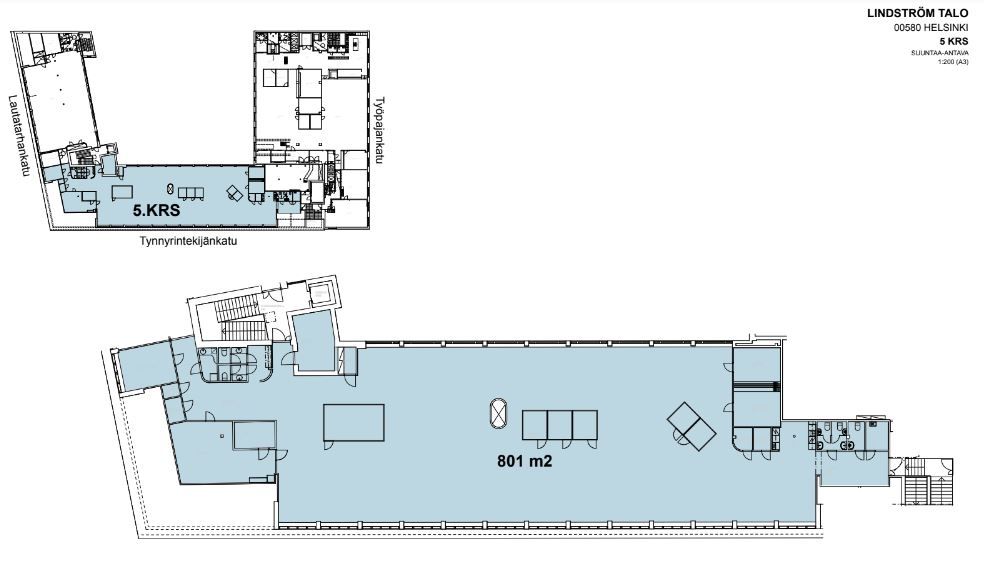
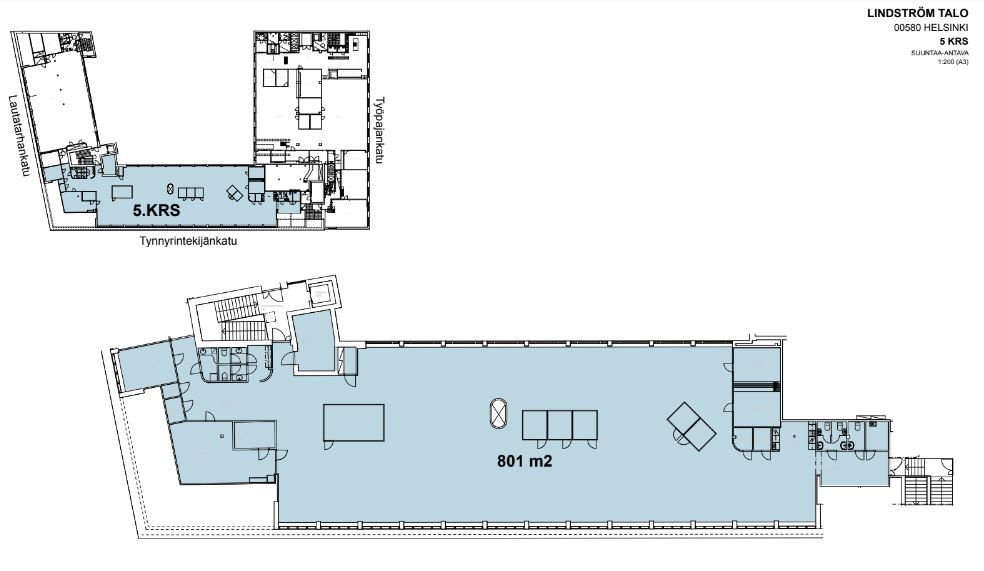
Rakennuksen kuvaus:
1901 rakennettu industriaalihenkinen Lindström talo sijaitsee näkyvällä paikalla Kalasatamassa. Talo on saneerattu vuonna 2003, mutta vanha tehdastunnelma on säilytetty. Kalasataman metroasema on aivan vieressä ja keskustaan pääsee 6 minuutissa. Talon yhteiskäyttöalueet on juuri uusittu jasaatavilla aulapalvelut, lounas- ja catering-palvelut sekä mahdollisuus asiakaspysäköintiin rakennuksen sisäpihalla. Neuvottelutiloja on saatavilla kahden hengen palaveriin sopivasta tilasta aina 100 hengen infotilaisuuteen. Talossa on myös autohalli kellarissa työntekijöiden käyttöön.
Tilan kuvaus:
Ullakkokerroksessa kaarevakattoista avotilaa, joka on muunneltavissa helposti. Tehokas, valoisa ja hyvä avotila persoonallisempaa hakevalle.
Kerros: 5
