Vuokrataan toimistotilat - Espoo
Tekniikantie 4 b, Otaniemi, keilaniemi, 02150 Espoo #10815932
Rakennuksen kuvaus:
Vuonna 1990 rakennettu, neljästä rakennuksesta koostuva Aallonharja-kiinteistö on vastikään uudistettu. Tällä persoonallisella toimistokohteella on mahdollisuus huolehtia omasta viljelyalueesta, kuntoilla, huoltaa polkupyörää tai lainata kiinteistön sähköpyöriä, saunoa kelosaunassa ja nauttia kattoterassista. Peruspalvelut ovat myös tasokkaat ja kiinteistöllä on aula, ravintola, kokoustiloja ja auditorio, parkkitilaa sekä vielä pop-up-toimistoja esim. projektitöihin. Sijainti on työmatkalaiselle kätevä ja kohteelta on kävelymatka metrolle.
Tilan kuvaus:
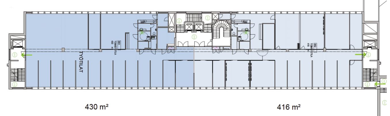
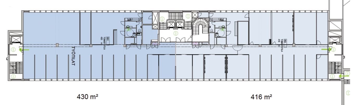
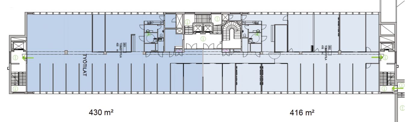
Vapaana hyvätasoista toimistotilaa Aallonharjan B-talon viidennessä kerroksessa. Vapaa tila pystytään muokkaamaan käyttäjän toiminnan vaatimusten mukaisesti avotilaksi, huoneiksi tai näiden yhdistelmäksi. Tila kattaa koko kerroksen ja on vuokrattavissa yhdelle käyttäjälle.
Kerros: 5
