Vuokrataan toimistotilat - Helsinki
Elimäenkatu 9, Vallila, 00510 Helsinki #10815900
Rakennuksen kuvaus:
Kravattitehdas koostuu kahdesta rakennuksesta, joista Elimäenkatu 9 on entinen teollisuusrakennus vuodelta 1929. Keskellä Vallilaa sijaitseva kohde on nykyisin toimistokäytössä ja tarjoaa trendikästä industriaalitilaa modernein ominaisuuksin. Kravattitehdas on tyylikäs ja särmikäs toimistotalo suotuisalla hinta-laatusuhteella. Yhteistiloja on uudistettu 2018-2019 talon ilmeen mukaisesti. Talossa on oma ravintola, kokoushuoneita, auditorio, suihku- sekä pukuhuonetilat sekä parkkihalli.
Tilan kuvaus:
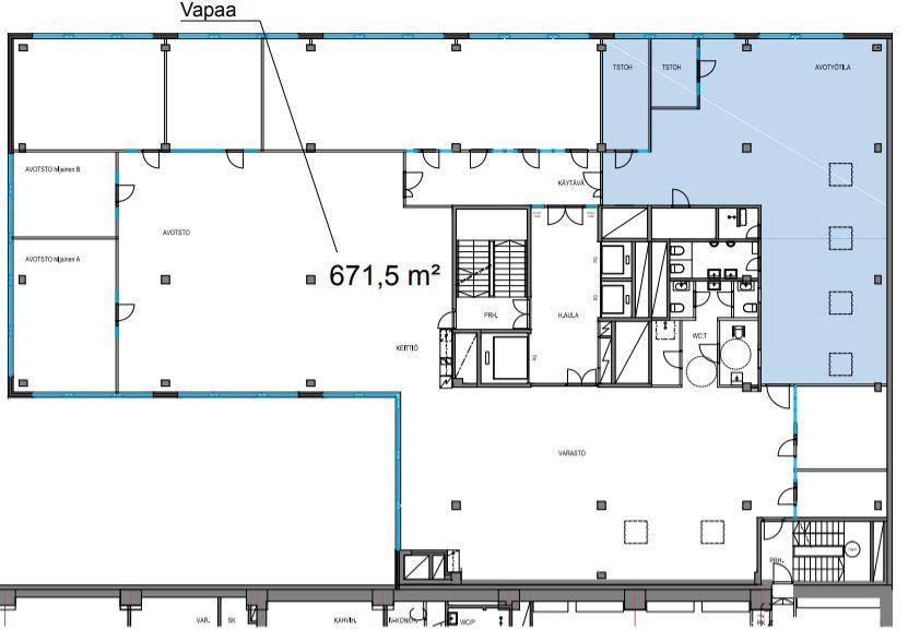
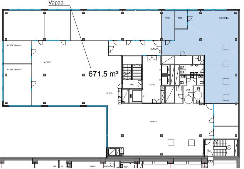
Modernisoitua toimitilaa vanhassa Kravattitehtaassa, joka on vastikään uudistettu talolle ominaista 30-luvun henkeä kunnioittaen. Elimäenkatu 9:n toimistoissa on trendikästä industriaalihenkeä ja tehdastunnelmaa. Rakennuksen B-osassa, johon on selkeästi opastettu kulku sisäpihalta, on vapaana 672m² tila 7. kerroksessa. Tila on osin avoa ja osin jaettuna isohkoihin huoneisiin. Osa tilasta on toiminut varastona ja on hyödynnettävissä varastointiin ja muokattavissa toimistoksi. Tila muokataan vuokralaisen toiveiden mukaan.
Kerros: 7
