Vuokrataan toimistotilat - Helsinki
Arkadiankatu 23, Etu-töölö, keskusta, 00100 Helsinki #10815895
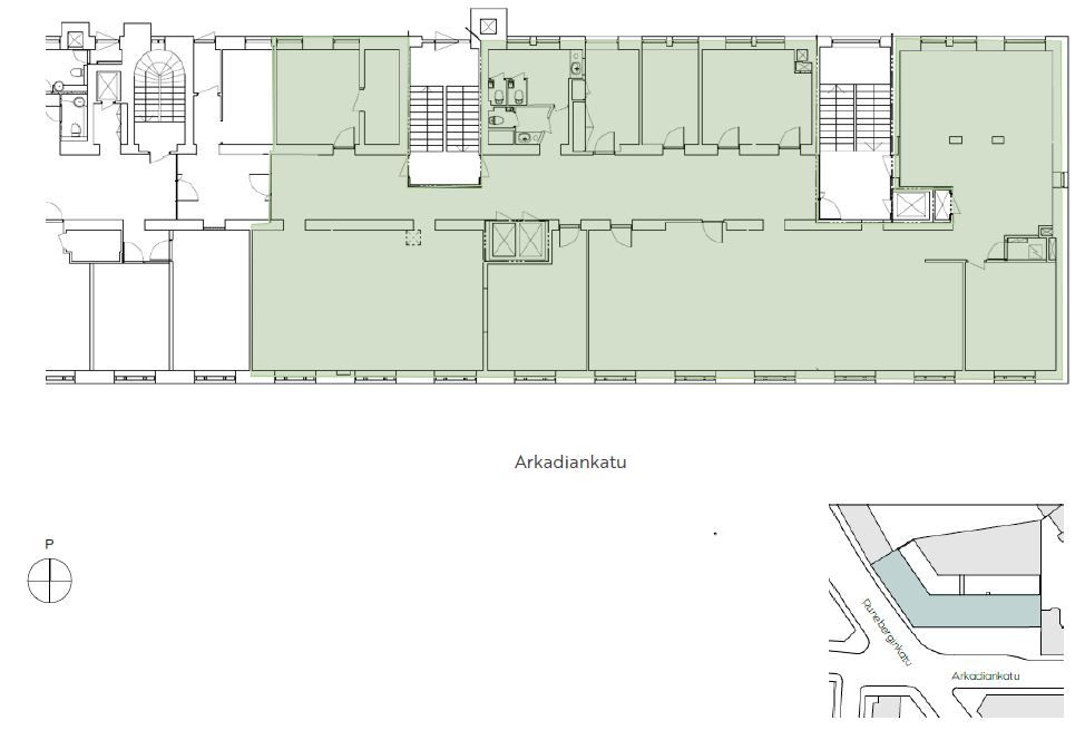
Rakennuksen kuvaus:
Runeberginkadun kulmassa sijaitseva vuonna 1934 rakennettu arvokiinteistö. Kiinteistöllä on takanaan värikäs historia mm. rahoitus ja media -alojen ja energiateollisuuden toimijoiden käytössä. Tilat ovat vuonna 2016 uusittu täydellisesti teknisesti ja sisätiloiltaan. Kohteella on kahvila ja hyvätasoinen ravintola kabinetteineen. Talossa on auditorio, neuvottelutiloja ja pihasiivessä 120 hengen seminaaritila. Sisäpihalla toimii Elixia kuntosali. Autohallipaikkoja kiinteistössä on 28 kpl ja kylmiä paikkoja pihalla 26 kpl.
Tilan kuvaus:
Hyvä monitilatoimisto kolmannessa kerroksessa vapautumassa 31.12.2022. Tilaan on kaksi hissillistä rappua. Tila jakaantuu isoihin avotiloihin sekä muutamiin pienempiin työ- ja neuvotteluhuoneisiin. Tila sijaitsee Arkadiankadun puoleisessa siivessä.
Kerros: 3
