Vuokrataan toimistotilat - Helsinki
Töölönkatu 4, Etu-töölö, keskusta, 00100 Helsinki #10815883
Rakennuksen kuvaus:
Etu-Töölössä aivan Eduskuntatalon vieressä sijaitseva Kuparitalo on toimistokiinteistö hyvien kulkuyhteyksien varrella. Moderni Kuparititalo on entinen Outokummun pääkonttori ja sen historiasta kertoo julkisivussa ja sisätiloissakin käytetty kupari. Kohteessa on vastaanotto, neuvottelukeskus, edustussauna ja pieni pysäköintihalli. Kauppakeskus Kamppi metroineen sijaitsee aivan kävelyetäisyyden päässä. Kohteen kuntosalin käyttö sisältyy vuokraan. Katutasossa on tasokas viini- ja ruokaravintola.
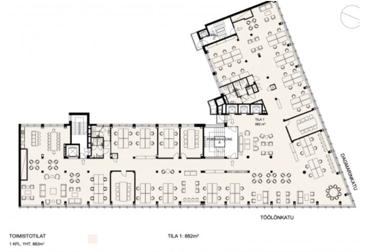
Tilan kuvaus:
Vapaana seitsemännen kerroksen arvokasta, mutta modernia toimistotilaa. Tila on nykymuodossaan avokonttoria, jonka ohessa erikokoisia neuvottelu- ja työhuoneita sekä muutamia puhelinkoppeja. Avara keittiö taukotiloineen kerroksen päädyssä, sivussa avotiloista, rauhoittaen työskentelyalueita. Upeat puistomaisemat!
Kerros: 7
