Vuokrataan toimistotilat - Helsinki
Töölönkatu 4, Etu-töölö, keskusta, 00100 Helsinki #10815882
Rakennuksen kuvaus:
Etu-Töölössä aivan Eduskuntatalon vieressä sijaitseva Kuparitalo on toimistokiinteistö hyvien kulkuyhteyksien varrella. Moderni Kuparititalo on entinen Outokummun pääkonttori ja sen historiasta kertoo julkisivussa ja sisätiloissakin käytetty kupari. Kohteessa on vastaanotto, neuvottelukeskus, edustussauna ja pieni pysäköintihalli. Kauppakeskus Kamppi metroineen sijaitsee aivan kävelyetäisyyden päässä. Kohteen kuntosalin käyttö sisältyy vuokraan. Katutasossa on tasokas viini- ja ruokaravintola.
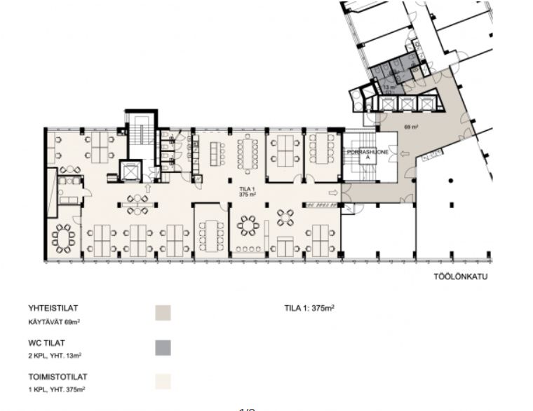
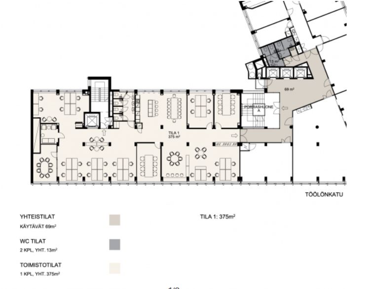
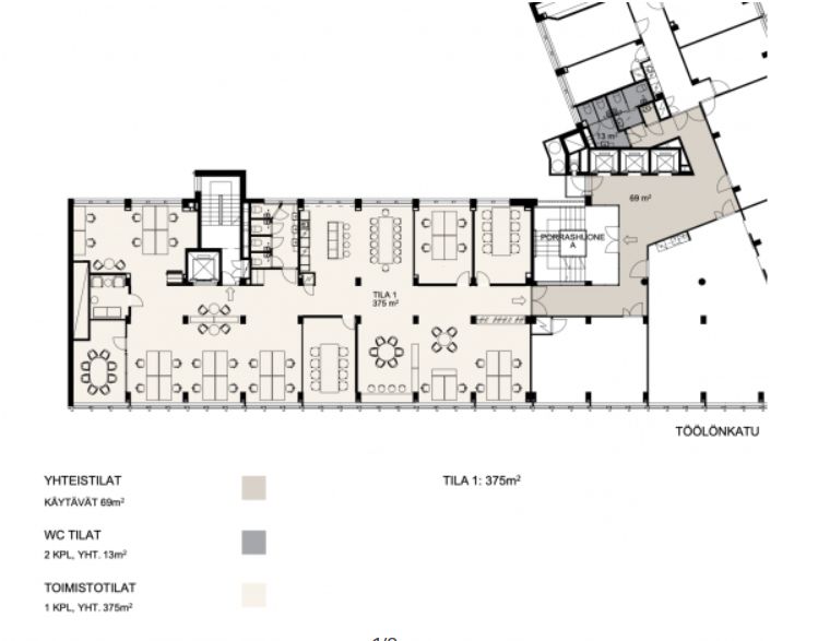
Tilan kuvaus:
Vapaana neljännen kerroksen Töölönkadun puoleinen siipi. Tia on arvokasta, mutta modernia toimistotilaa ja nykymuodossaan kombitoimistoa, jossa avotilaa ja työ- sekä neuvotteluhuoneita.
Kerros: 4
