Vuokrataan toimistotilat - Helsinki
Hiomotie 32, Pitäjänmäki, 00380 Helsinki #10815879
Rakennuksen kuvaus:
Vuonna 1999 rakennettu Strömberginaukio Business Park on näyttävä ja tyylikäs sekä palveluiltaan laadukas toimistotalo Pitäjänmäen yritysalueella. Teräsrunkoisessa, lasisessa rakennuksessa on tiloja kuudessa kerroksessa eri kokoluokan yrityksille. Huoneistot ovat muunneltavissa kombikonttorista avotilaksi. Kiinteistössä on erillisiä kokous- ja edustustiloja, aulapalvelu, lounasravintola, kuntosali ja sauna. Kiinteistössä on yli 200 autopaikan pysäköintihalli ja sisäänkäynnin edustalla 24 vieraspaikkaa.
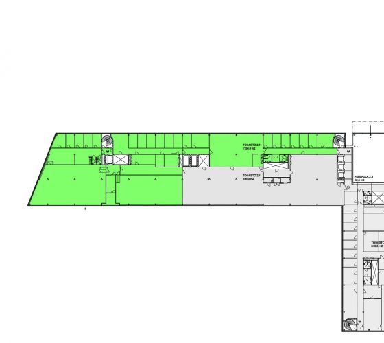
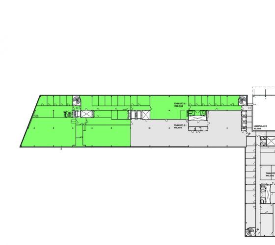
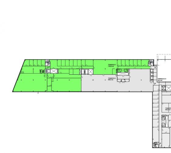
Tilan kuvaus:
Vapaana hyvää toimitilaa lähellä Valimon juna-asemaa. Vuokrattava tila sijaitsee toisessa kerroksessa ja koostuu pääosin avotilasta mutta sisältää myös toimistohuoneita ikkunaseinällä. Tilaa voidaan muokata uuden käyttäjän toiveiden mukaan. Tila yhdistetään vuokralaiselle kahdesta viereisestä vapaasta tilasta.
Kerros: 2
