Vuokrataan toimistotilat - Helsinki
Pohjoisesplanadi 35, Keskusta, 00100 Helsinki #10815867
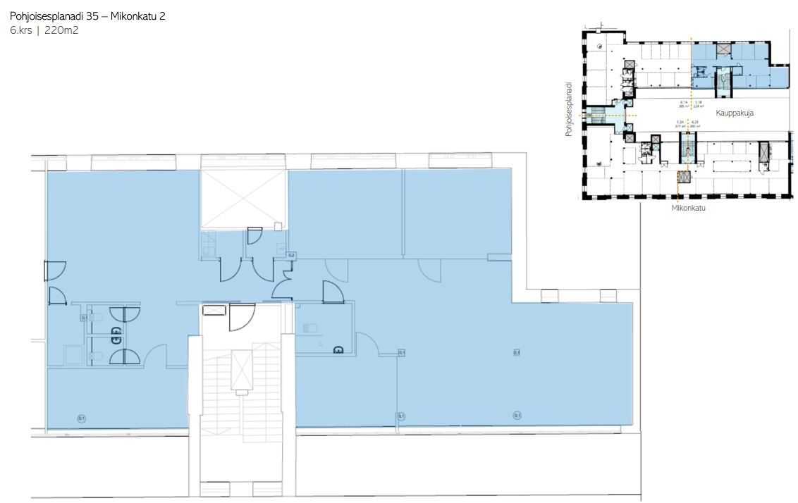
Rakennuksen kuvaus:
Vanhana kauppakujana tunnettuun, vuonna 1888 valmistuneeseen arvokiinteistöön toteutettiin vuonna 2016 valmistunut laaja peruskorjaus, jonka aikana rakennus uudistettiin nykyajan vaatimuksiin. Kohteella on koneellinen ilmanvaihto sekä jäähdytys, minkä lisäksi tilat voidaan arvokiinteistön ehdoin toteuttaa vastaamaan monenlaisia tarpeita. Sijainti aivan ydinkeskustassa takaa saavutettavuuden ja lyhyet etäisyydet palveluihin. Lähin pysäköintihalli sijaitsee Kluuvissa.
Tilan kuvaus:
Hyvin suunniteltu avo- ja tiimihuoneisiin jakautuva tila rakennuksen ylimmässä kerroksessa, uutta vastaava, ilmastoitu. Tilassa on jäähdytys. Tähän tilaan sisäänkäynti Mikonkatu 2:n puolelta.
Kerros: 6
