Vuokrataan toimistotilat - Helsinki
Pohjoisesplanadi 37, Keskusta, 00100 Helsinki #10815857
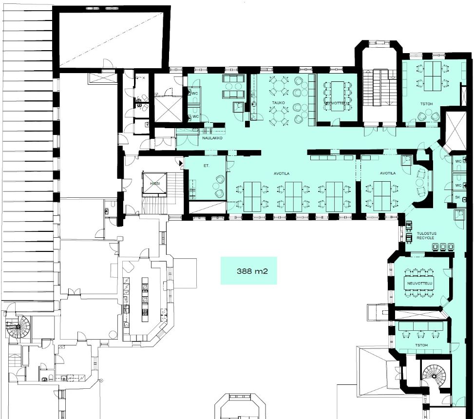
Rakennuksen kuvaus:
Pohjoisesplanadi 37 eli Halosen talo on rakennettu vuonna 1891 ja sijaitsee Esplanadilla. Kaikki keskusta-alueen monipuoliset palvelut ja yhteydet ovat lähettyvillä ja parkkihalli sijaitsee lyhyen kävelymatkan päässä Kluuvissa. Taidokkaasti saneeratussa arvokiinteistössä on tasokasta toimitilaa seitsemässä kerroksessa, plus kellaritilat. Tilat on jaettavissa toimistomoduulien mukaisiin kokonaisuuksiin, joiden huoneistomuutokset on mahdollista toteuttaa vanhan rakennuksen ehdoin. Talotekniikka on ajantasainen.
Tilan kuvaus:
Halosen talossa vapaata tasokasta toimistotilaa neljännessä kerroksessa. Vuokrattava tila on hyvä toimistokokonaisuus, josta saa muokattua avo- tai huonetoimistoa käyttäjän tarpeen mukaan. Tila tullaan remontoimaan vuokralaisen tarpeita vastaavaksi. Tila sijaitsee sisäpihan puoleisessa osassa.
Kerros: 4
