Vuokrataan toimistotilat - Espoo
Länsituulentie 1, Tapiola, 02100 Espoo #10815839
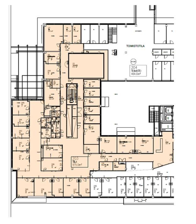
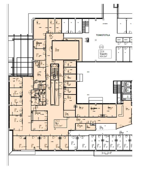
Rakennuksen kuvaus:
Tapiolan keskustassa sijaitseva Merituulentien liikekiinteistö. Erinomaiset liikenneyhteydet.
Tilan kuvaus:
Monipuolinen toimistotila, joka on aiemmin ollut lääkäriaseman käytössä. Tila on siis jaettu useisiin versipisteellisiin huoneisiin. Tila on siistissä kunnossa ja kiinteistö on tunnettu sen hyvinvointipalveluista. Kiinteistö sijaitsee aivan Tapiolan keskustassa.
Kerros: 2
Osoite
Länsituulentie 1, 02100 Espoo
Tilatyyppi
Toimistotilaa
999 m2
Vapautuu
Heti vapaa
Ota yhteyttä
Pyydä lisätietoa
