Vuokrataan toimistotilat - Helsinki
Tammasaarenlaituri 3, Ruoholahti, keskusta, 00180 Helsinki #10815835
Rakennuksen kuvaus:
Itämerentalo sijaitsee meren rannalla Ruoholahdessa, aivan Lauttasaarensillan kupeessa. Rakennukselta avautuu kauniit merimaisemat. Itämerentalon tilat ovat trendikästä industrial-henkistä loft-tilaa betonipylväineen ja korkeine kattoineen. Rakennus on saneerattu vuonna 2002 ja sen tekniikka on nykyaikaista. Talossa vuokralaisia palvelee aulapalvelu, ravintola, neuvottelutilat sekä pienvarastot ja autohalli. Kulku talolle on helppoa julkisilla liikennevälineillä ja työmatkalaisien käytettävissä on bussit, metro ja ratikkalinjat.
Tilan kuvaus:
Vapaana modernisoitu ja persoonallinen toimistotila. Tiloissa on valoisat ja avarat työskentelyolosuhteet, merkittävä huonekorkeus sekä upea merinäköala kruunaa kokonaisuuden. Tilasta mahdollisuus muokata käyttäjän tarpeisiin sopiva, esimerkiksi tehokas ja trendikäs loftmainen avotoimisto.
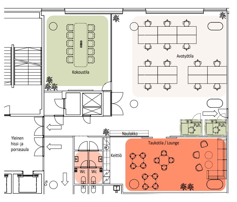
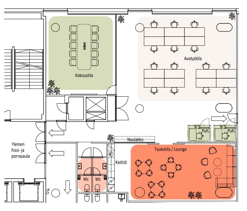
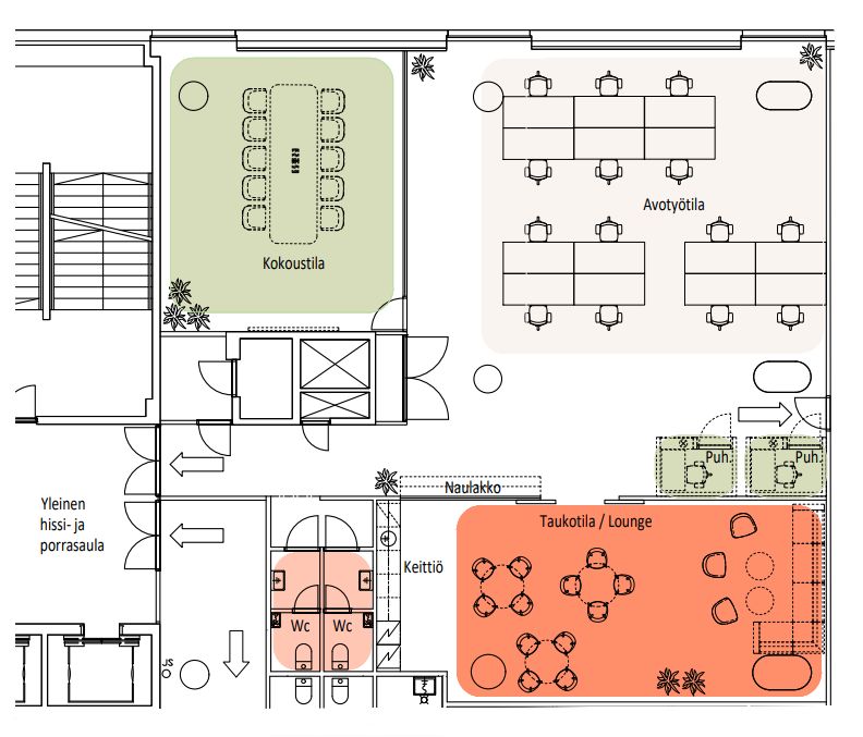
Tila näkyy oheisessa pohjakuvassa Tilana B.
Kerros: 2
