Vuokrataan toimistotilat - Helsinki
Kasarmikatu 25, Keskusta, 00130 Helsinki #10815827
Rakennuksen kuvaus:
Kaunis, boutique-henkinen toimistotalo on suojeltu arvokiinteistö, josta on modernisoitu uniikki ja nykyaikainen toimistokohde. Kaartinkaupungissa talo on ravintoiden, baarien ja hotellien ympäröimä ja vain kävelyetäisyydellä julkisista liikenneyhteyksistä. Uudistunut talo on saanut uudet palvelut ja katutasossa on mm. ravintola sekä vuokralaisille kokoustilat sekä atriumaula aulapalveluineen. Harkittu kokonaisuus harvainaislaatuisessa kohteessa halutulla sijainnilla!
Tilan kuvaus:
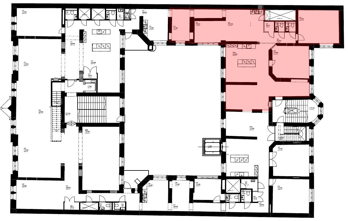
Vuokrattavana viidennen kerroksen edustava huonetoimisto. K25:n tilat ovat valoisat ja juuri valmistuneet mittavasta saneerauksesta. Talon tilat on tekniikaltaan modernit ja tiloihin on toteutettavissa viihtyisät toimistotilat vuokralaiselle. 175m² toimisto sijaitsee talon sisäpihan puoleisessa osassa taloa ja merkattu oheiseen pohjakuvaan punaisella.
Kerros: 5
