Vuokrataan toimistotilat - Helsinki
Mannerheimintie 160, Ruskeasuo, 00300 Helsinki #10815809
Rakennuksen kuvaus:
Tilkan Paletti on 1989 rakennettu kiinteistö aivan Tilkan sairaalan vieressä. Kiinteistön yhteydessä on oma parkkihalli, josta löytyy tilaa yli 200:lle autolle. Liikenneyhteydet ovat erinomaiset, raitovaunu- ja bussipysäkki kiinteistön edessä. Kiinteistössä ravintola, posti ja hyvätasoinen elintarvikekauppa.
Tilan kuvaus:
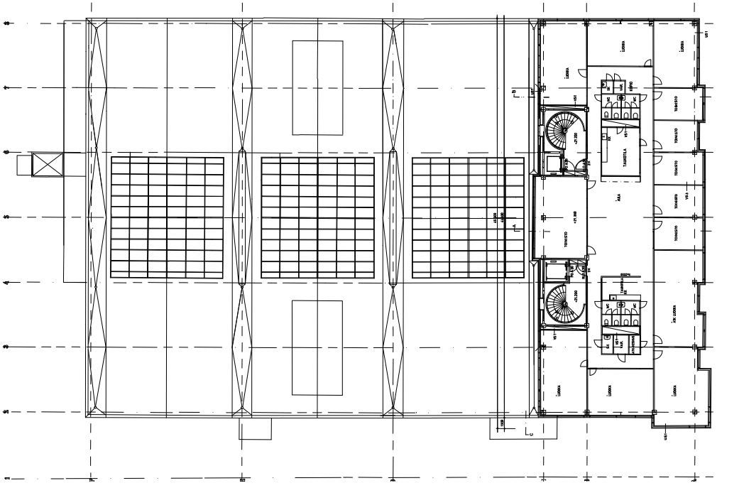
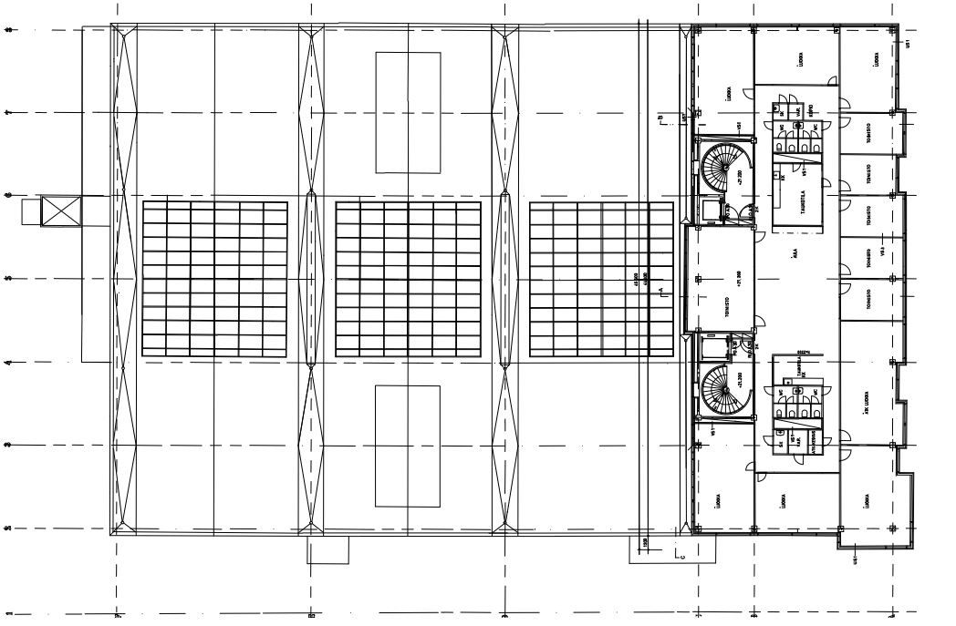
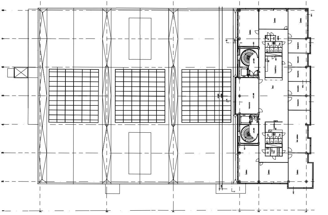
Tilkan Paletti aivan Tilkan sairaalan vieressä. Kahdessa päällekkäisessä kerroksessa hyvää ja tehokasta huonekonttoria, joka avattavissa avotilaksi vuokralaisen tarpeet huomioiden. Samassa talossa kauppa ja paljon parkkipaikkoja hallissa. Myös hyvät julkiset kulkuyhteydet.
Kerros: 5-6
Osoite
Mannerheimintie 160, 00300 Helsinki
Tilatyyppi
Toimistotilaa
1408 m2
Vapautuu
Heti vapaa
Ota yhteyttä
Pyydä lisätietoa
