Vuokrataan toimistotilat - Helsinki
Kaivokatu 10, Keskusta, 00100 Helsinki #10815806
Rakennuksen kuvaus:
Helsingin keskipisteessä sijaitseva perinteikäs Kaivotalo on rakennettu 1955. Se sijaitsee vastapäätä päärautatieasemaa Kaivopihalla ja kulkuyhteydet rakennukselle ovat vertaansa vailla ja mm. suoraan rakennuksen alla on pääsy metroon. Rakennuksen ensimmäiset kerrokset ovat liiketilakäytössä ja ylimmät kerrokset toimistotiloina. Tiloista on hienot näkymät ja ne ovat monin tavoin modernit.
Tilan kuvaus:
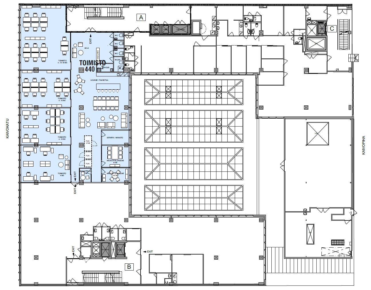
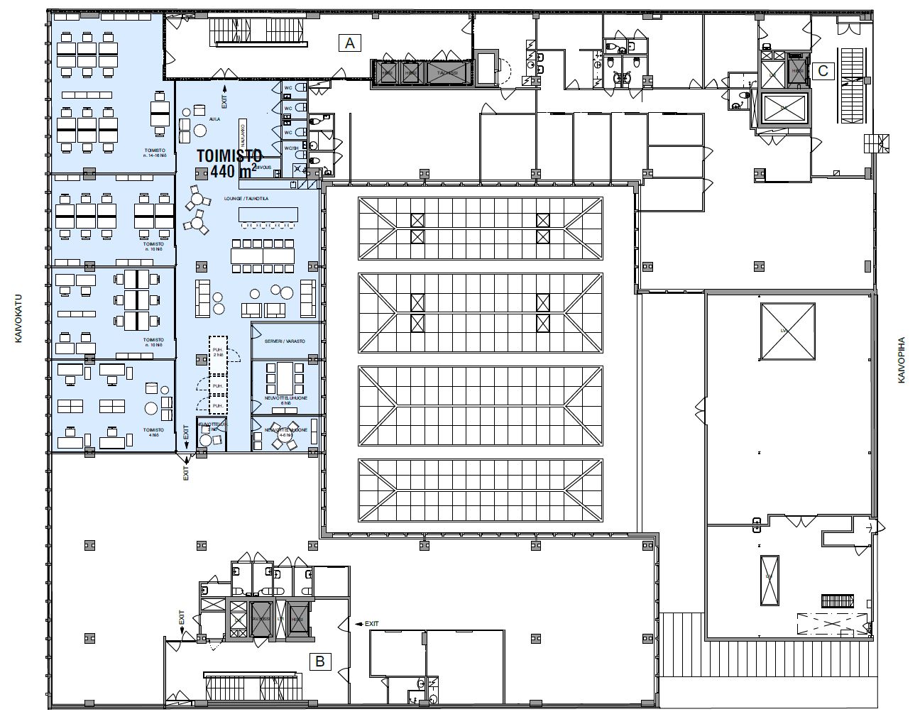
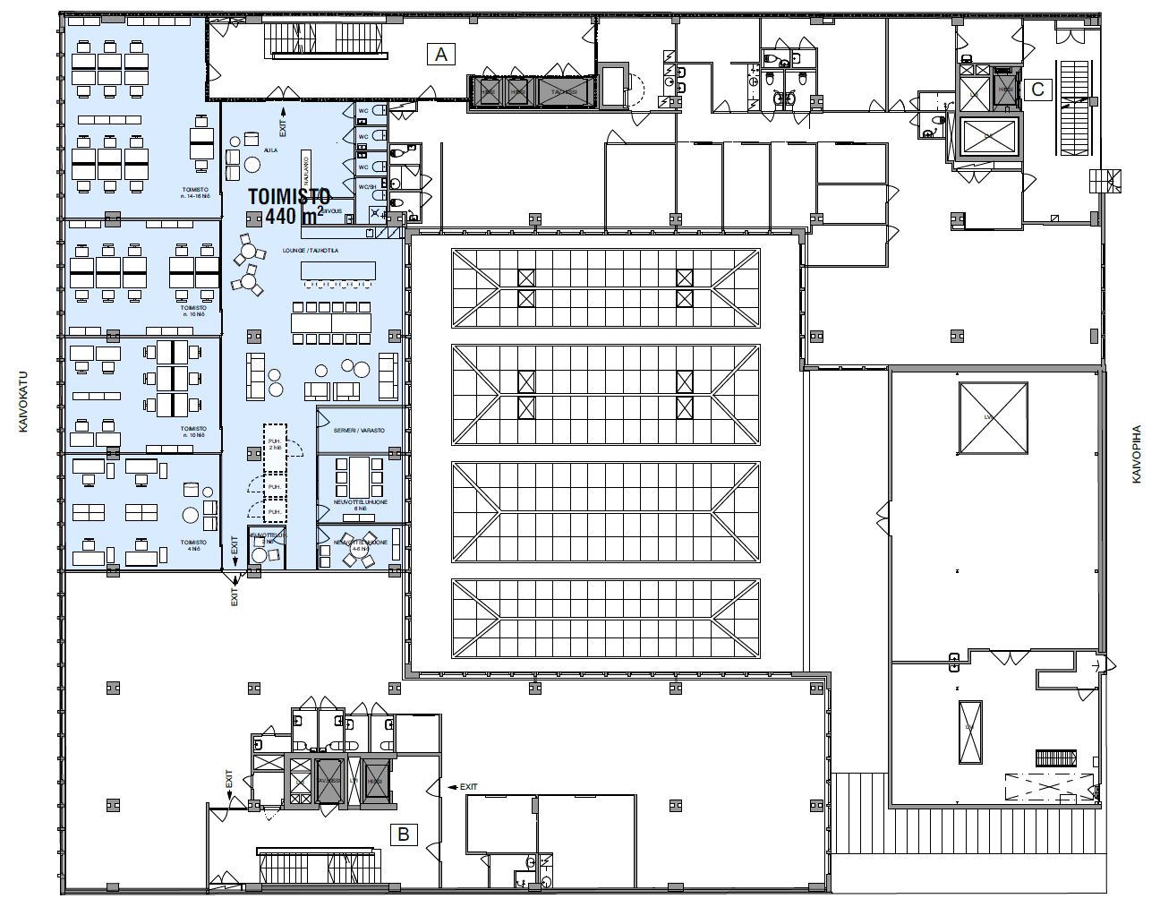
Hyväkuntoinen toimistotila Kaivotalon viidennessä kerroksessa vapaana vuokrattavaksi. Helsingin keskeisimpiä sijainteja ja ikkunoista avautuukin upeat, avarat näkymät kohti Elielinaukiota ja Rautatieasemaa. Lisäksi tilassa on ikkunat talon sisäpihalle ja valoa tulee toimistoon kahdesta suunnasta. Tila on siisti ja modernia monitilaympäristöä avotiloineen ja neuvotteluhuoneineen.
Kerros: 5
