Vuokrataan toimistotilat - Helsinki
Valimotie 17-19, Pitäjänmäki, 00380 Helsinki #10815803
Rakennuksen kuvaus:
Vuonna 1993 valmistunut toimistorakennus Valimotiellä tarjoaa nykyaikaiset toimistotilat ja tehokkaat tilaratkaisut. Rakennuksessa on saatavilla monipuolisia palveluja henkilöstöravintola, aulapalvelut, auditorio kuntosali ja uima-allas, edustustilat, sauna sekä takkahuone. Kiinteistö sijaitsee hyvien liikenneyhteyksien ja palveluiden läheisyydessä. Pihatasolla ja autohallissa on runsaasti pysäköintipaikkoja vuokralaisten käyttöön. Valimon juna-asema on lyhyen kävelymatkan päässä.
Tilan kuvaus:
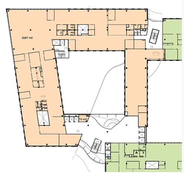
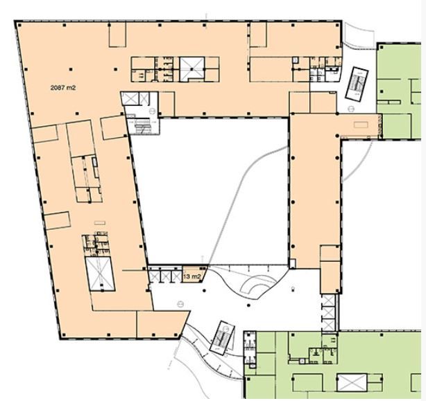
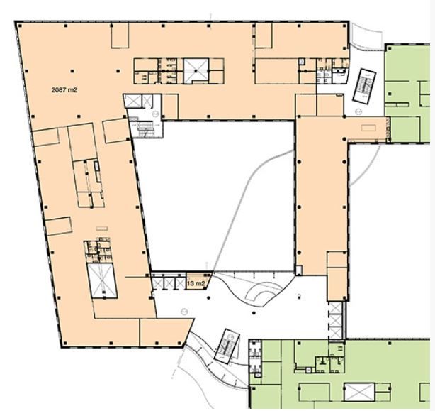
Vihdintien tuntumassa laadukas toimistokiinteistöm jossa vapaana 4. kerroksen suuren käyttäjän toimisto. Koko 2.087m² sijoittuu yhteen tasoon ja mahdollistaen lähes 200 työpistettä yhtenäisessä toimistossa. Vuokrattava-ala on laajennettavissa aina jopa 4.385m² saakka. Vuokralaisten käytössä on seuraavat palvelut: aulapalvelu, ravintola, henkilökunnan virkistäytymistilat uima-alaineen, edustustilat ja auditorio. Runsaasti autopaikkoja pihalla ja parkkihalleissa.
Kerros: 4
