Vuokrataan toimistotilat - Helsinki
Sörnäisten rantatie 29, Sörnäinen, 00580 Helsinki #10815800
Rakennuksen kuvaus:
Kalasataman Kummeli on Sörnäisten Rantatien ja Vilhonvuorenkadun kulmassa sijaitseva kiinteistö, joka on uudistettu moderniksi toimistokohteeksi. Talossa on näyttävä sisääntulokerros, jossa aulapalvelu, vuokrattavia neuvotteluhuoneita ja tasokas lounasravintola, josta saa myös catering. Valoisat toimistotilat täyttävät vaativankin käyttäjän standardit. Kaikki Kalasataman ja Sörnäisten palvelut ovat lähellä, minkä lisäksi liikenneyhteydet ovat erinomaiset. Autoilijoille löytyy parkkipaikkoja omasta hallista.
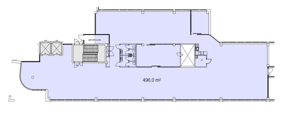
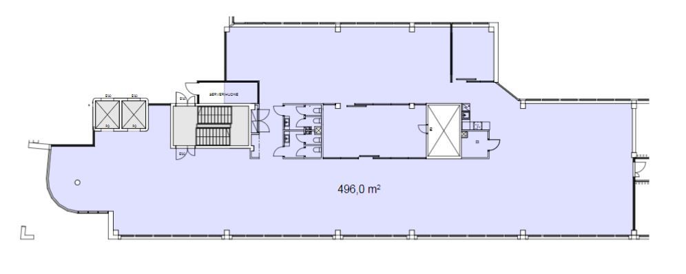
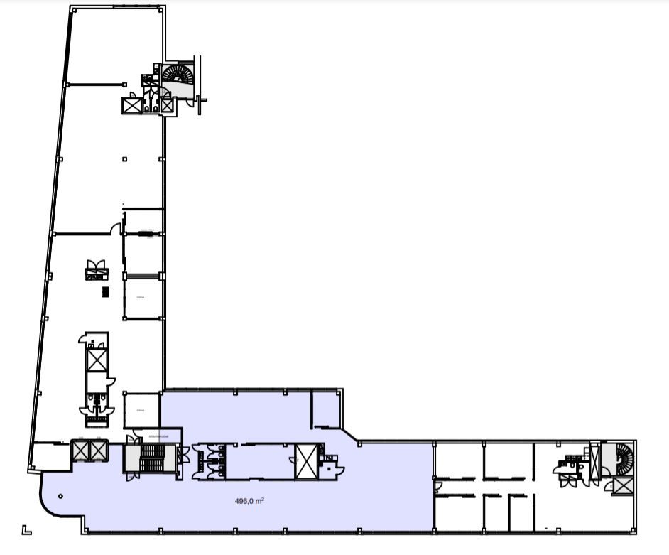
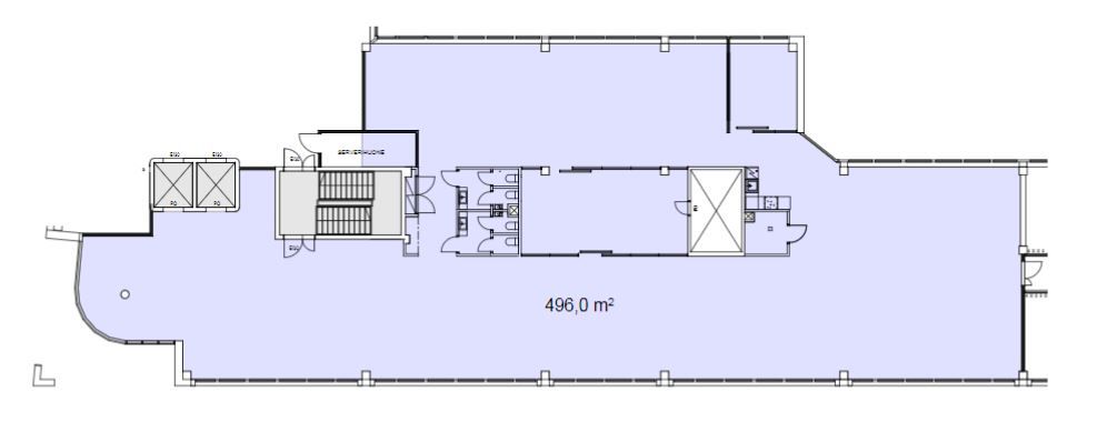
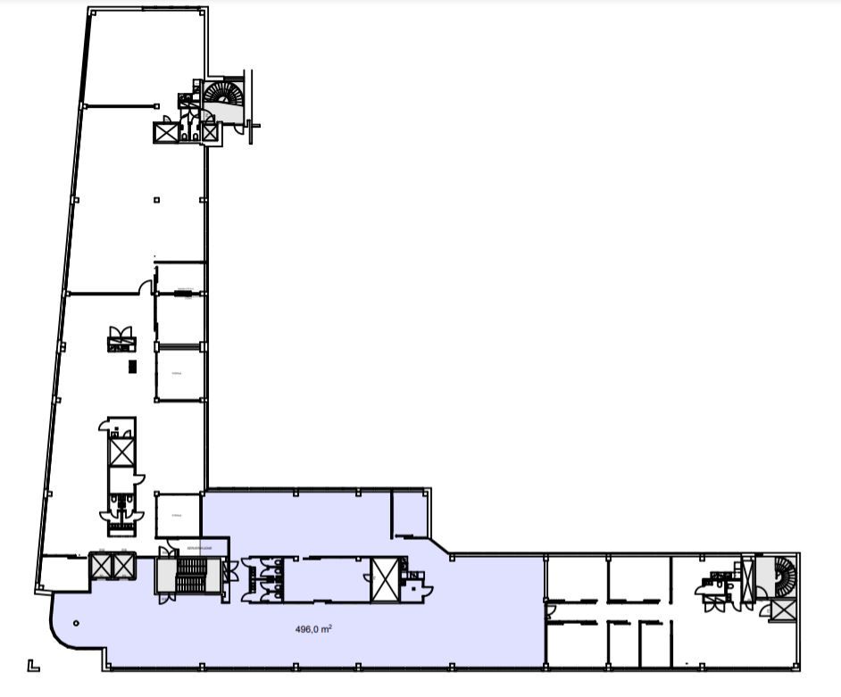
Tilan kuvaus:
Tasokasta avotoimistoa neljännestä kerroksesta. Tilaa voidaan muokata uuden käyttäjän tarpeen mukaan. Valoisassa industrial-henkisessä tilassa on toimiva pohja, jossa onnistuu erilaiset tilankäytöt. Tila on osa modernia ja yksilöllistä Business Parkia, jossa viihtyvyyteen panostetaan. Vapaa toimisto sijaitsee Sörnäiste Rantatien puoleisessa siivessä avarin ikkunanäkymin.
Kerros: 4
