Vuokrataan toimistotilat - Helsinki
Vuorikatu 20, Keskusta, 00100 Helsinki #10815797
Rakennuksen kuvaus:
Vuorikatu 20 sijaitsee Kaisaniemessä vain kivenheiton päässä Rautatieasemasta. Helsingin yliopiston metroasemalle kulku aivan kiinteistön nurkilta. Kiinteistön tekniikka on uusittu nykyaikaiseksi. Kiinteistö jakautuu kahteen toimistosiipeen ja sisäpihalla on lasinen atrium valokuilulla, joka tuo tiloihin valoisuutta. Sisäpihalla mukava kaikkien vuokralaisten käytössä oleva oleskelualue. Talon käyttäjille pukuhuone säilytyskappeineen ja suihkuineen
kellarikerroksessa. Kiinteistössä on oma pysäköintihalli, jossa on 14 paikkaa. Europark ja Aimopark Kluuvi sijaitsevat lyhyen kävelymatkan päässä.
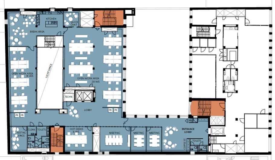
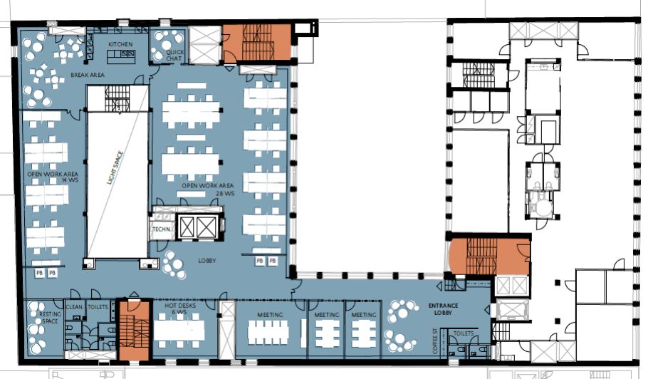
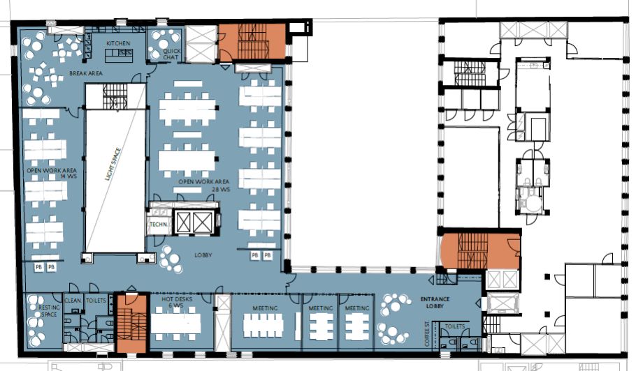
Tilan kuvaus:
Vuorikatu 20:n B-siiven 3. kerroksen toimisto vapaana vuokrattavaksi. Rakennuksen tilatekniikka on ajantasainen. Tämä tila remontoidaan vuokralaisen tarpeiden mukaan, kuvat havainnekuvia tästä tilasta. Tarvittaesa yhdistettävissä muihin kerroksiin sisäportaalla, jolloin muodostettavissa jopa 1935 m2 toimisto.
Kerros: 3
