Vuokrataan toimistotilat - Helsinki
Uudenmaankatu 16-20, Punavuori, keskusta, 00120 Helsinki #10815778
Rakennuksen kuvaus:
Punavuoren Dekin täysin uudistetut toimitilat ydinkeskustassa, Annankadun ja Uudenmaankadun kulmassa. Talo on täysin saneerattu 2019-2021 ja sen avarissa, valoisissa tiloissa on tehokas pohjaratkaisu sekä nykyaikainen tilatekniikka. Suuri kerroskoko mahdollistaa hyvin joustavan toteutuksen aina 200 työpisteeseen per kerros. Kerrokset ovat myös jaettavissa tilatarpeen mukaan. Talon erikoisuutena keskustassa iso oma parkkihalli. Lisäksi pyöräparkki ja yhteissuihkutilat, sekä hyvät palvelut alueella. Kampin metrolle vain 8 min kävelymatka.
Tilan kuvaus:
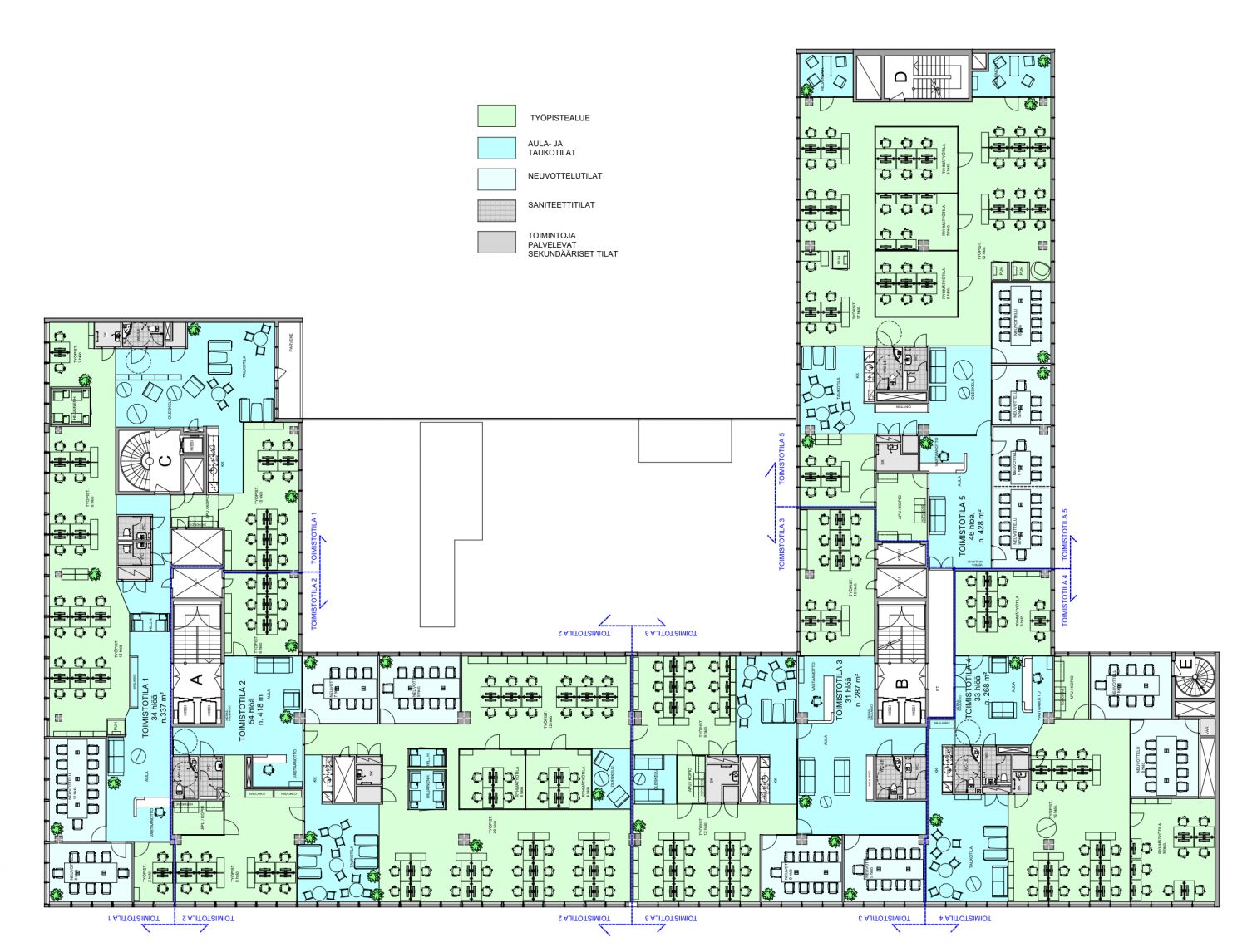
Vuokrattavana monipuolisesti erilaisia tilakokonaisuuksia, esimerkiksi 315m² toimisto talon toisesta kerroksesta, Uudenmaankadun puoleiselta sivulta. Tila näkyy oheisessa pohjakuvassa violetilla sävyllä ja on laajennettavissa aina koko kerroksen kokoiseksi, noin 1750m². Tilat ovat vastikään täysin saneerattu ja tekniikka on moderni. Kerros on joustava mahdollistaen sekä avotilan että huonetoimiston tai niiden yhdistelmän. Tilat muokataan vuokralaisen tarpeeseen.
Kerros: 2
