Vuokrataan toimistotilat - Helsinki
Uudenmaankatu 16-20, Punavuori, keskusta, 00120 Helsinki #10815762
Rakennuksen kuvaus:
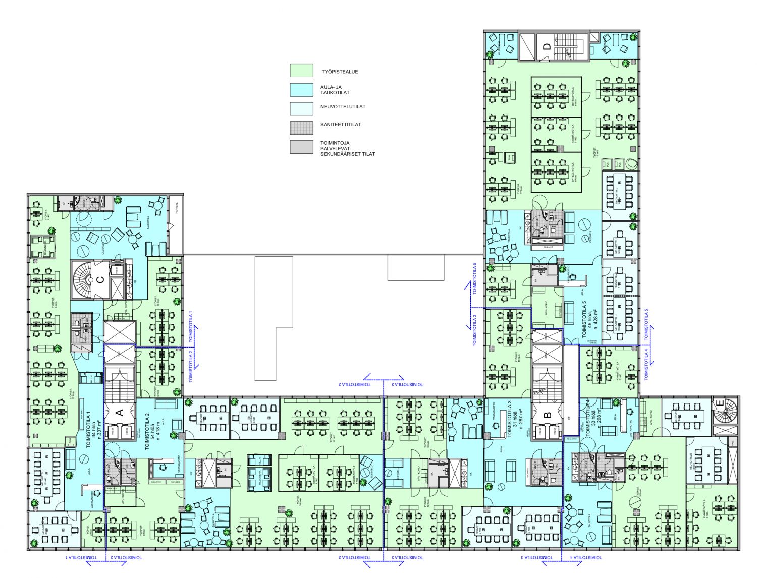
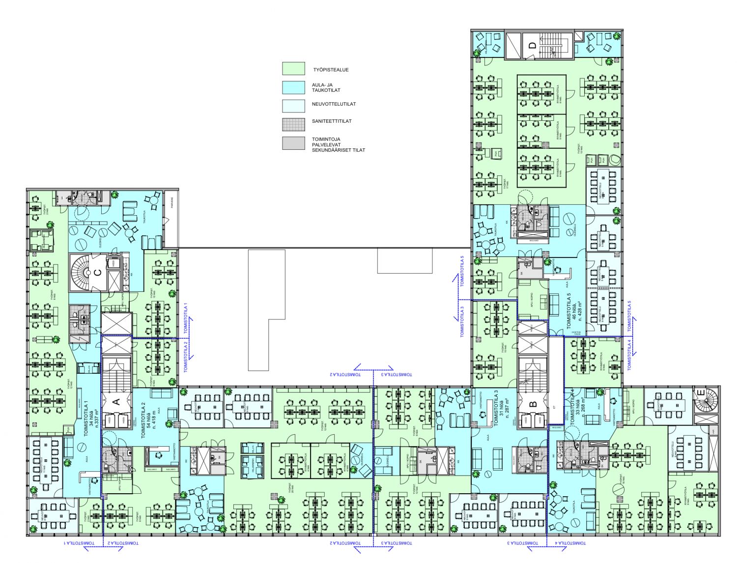
Punavuoren Dekin täysin uudistetut toimitilat ydinkeskustassa, Annankadun ja Uudenmaankadun kulmassa. Talo on täysin saneerattu 2019-2021 ja sen avarissa, valoisissa tiloissa on tehokas pohjaratkaisu sekä nykyaikainen tilatekniikka. Suuri kerroskoko mahdollistaa hyvin joustavan toteutuksen aina 200 työpisteeseen per kerros. Kerrokset ovat myös jaettavissa tilatarpeen mukaan. Talon erikoisuutena keskustassa iso oma parkkihalli. Lisäksi pyöräparkki ja yhteissuihkutilat, sekä hyvät palvelut alueella. Kampin metrolle vain 8 min kävelymatka.
Tilan kuvaus:
Vuokrattavana erilaisia tilakokonaisuuksia, esimerkiksi 541m² toimisto talon kolmannesta kerroksesta. Tila sijaitsee talon Uudenmaankadun ja Annankadun puoleisessa kulmassa ja on erityisen valoisa. Tilaa on mahdollista laajentaa aina 1536m² asti samassa kerroksessa. Tilat ovat vastikään täysin saneerattu ja tekniikka on moderni. Kerros on joustava mahdollistaen sekä avotilan että huonetoimiston tai niiden yhdistelmän. Tilat muokataan vuokralaisen tarpeeseen.
Kerros: 3
