Vuokrataan toimistotilat - Helsinki
Mikonkatu 13, Keskusta, 00100 Helsinki #10815759
Rakennuksen kuvaus:
Mikonkadun ja Kaisaniemenkadun kulmassa, keskellä vilkkainta ydinkeskustaa sijaitseva kulttuurihistoriallisesti merkittävä toimistorakennus. 100-vuotias talo tarjoaa nykyisin modernisoitua, räätälöitävää toimistotilaa vuokralaisilleen. Kohteen tilat erottuvat yksityiskohdillaan ja mittavalla huonekorkeudella. Rakennukselta on lyhyt kävelymatka rautatieasemalle, Helsingin Yliopiston metroon ja alueen moniin parkkihalleihin. Ympärillä on runsaasti ravintoloita, hotelleja ja muita palveluita.
Tilan kuvaus:
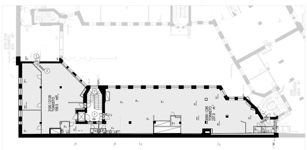
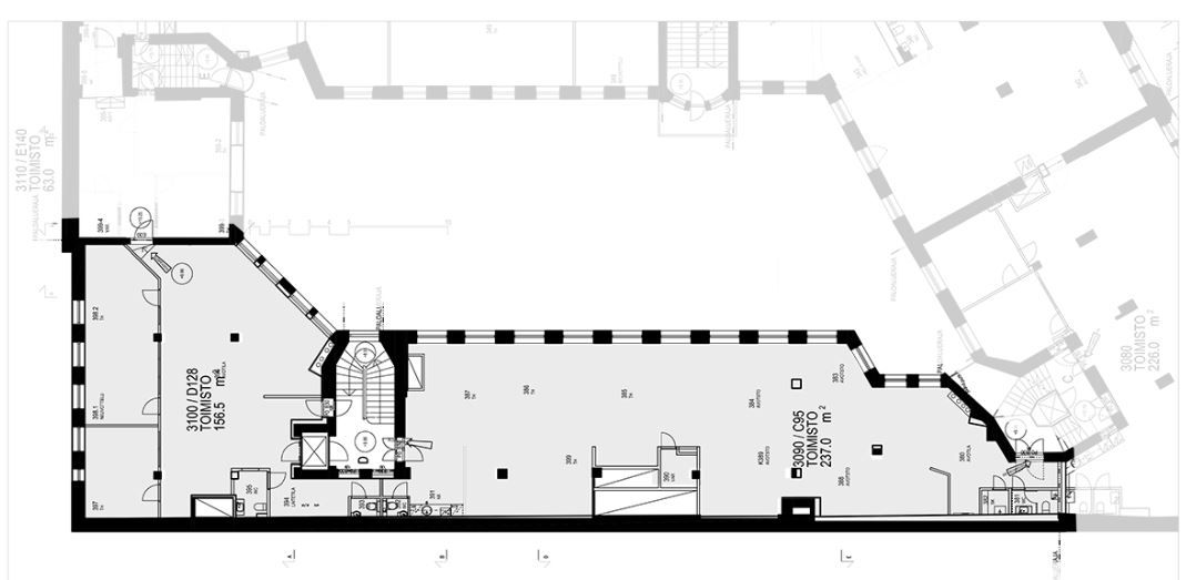
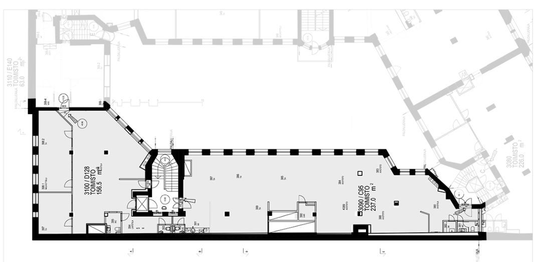
Vuokrattana rakennuksen C-rapusta, sisäpihan puoleinen rauhallinen toimistotila. Tilassa toteutetaan pintaremontti ja muokataan vuokraavan yrityksen näköiseksi. Oheinen pohjakuva osoittaa koko 3. kerroksen vapaan alan, yhteensä 393.5 m² ja tämä kyseinen tila 237 m² sijaitsee rapun oikealla puolella. Ikkunoista näkymät kahteen suntaan sisäpihoille. Tilan sisäänkäynti on suoraan Kaisaniemenkadulta.
Kerros: 3
